Stanovanje - UMAG - 190.000 EUR
| Lokacija | UMAG, Istrska | 
| Cena € | 190.000 | 
| Površina | 54 m2 | 
| Število kopalnic | 1 | 
| Oddaljenost od morja | 0 m | 
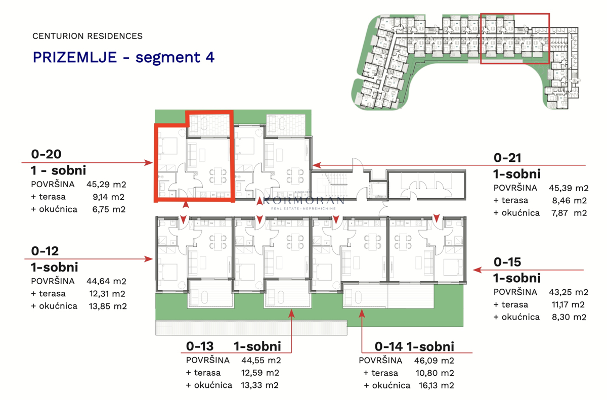
Projekt Centurion Residences se nahaja v Umagu, v neposredni bližini vseh pomembnih objektov. Dovolj je omeniti, da se v neposredni bližini nahajajo trgovine, vrtec, šola, zdravstveni dom, športna igrišča, kavarne in restavracije. Hoje oddaljen od prvih mestnih plaž, centra mesta in promenade. Centurion Residences je odličen primer sodobne novogradnje. Stavbo sestavljajo štirje vhodi in skupno 122 stanovanj.  Apartma 020 ima skupno notranjo površino 45,29 m2, obsega dnevno sobo, spalnico in kopalnico ter teraso 9,14 m2. Stanovanju pripada parkirno mesto. Kaj pridobite z nakupom stanovanja v Centurion Residence: - Kakovostna gradnja in izbrani materiali - Pripadajoči vrt ob pritličnih stanovanjih - 1 ali 2 parkirni mesti ob vsakem stanovanju/ - Pokrito parkirišče in garaža - PVC zunanje pohištvo - Multi split klimatska naprava - Armiranobetonska monolitna konstrukcija - Fasadni sistem ETICS, toplotna izolacija debeline 10 cm, prvovrstno okovje priznanih proizvajalcev. - Prvovrstna keramika velikega formata - V vseh prostorih prvovrstni parket Rok za izvedbo je junij 2025.
ID: 1221453