Stanovanje - UMAG Vprašaj za ceno
| Lokacija | UMAG, Istrska |
| Cena € | Cena na upit |
| Površina | 55 m2 |
| Število sob | 2 |
| Število kopalnic | 2 |
| Oddaljenost od morja | 2000 m |
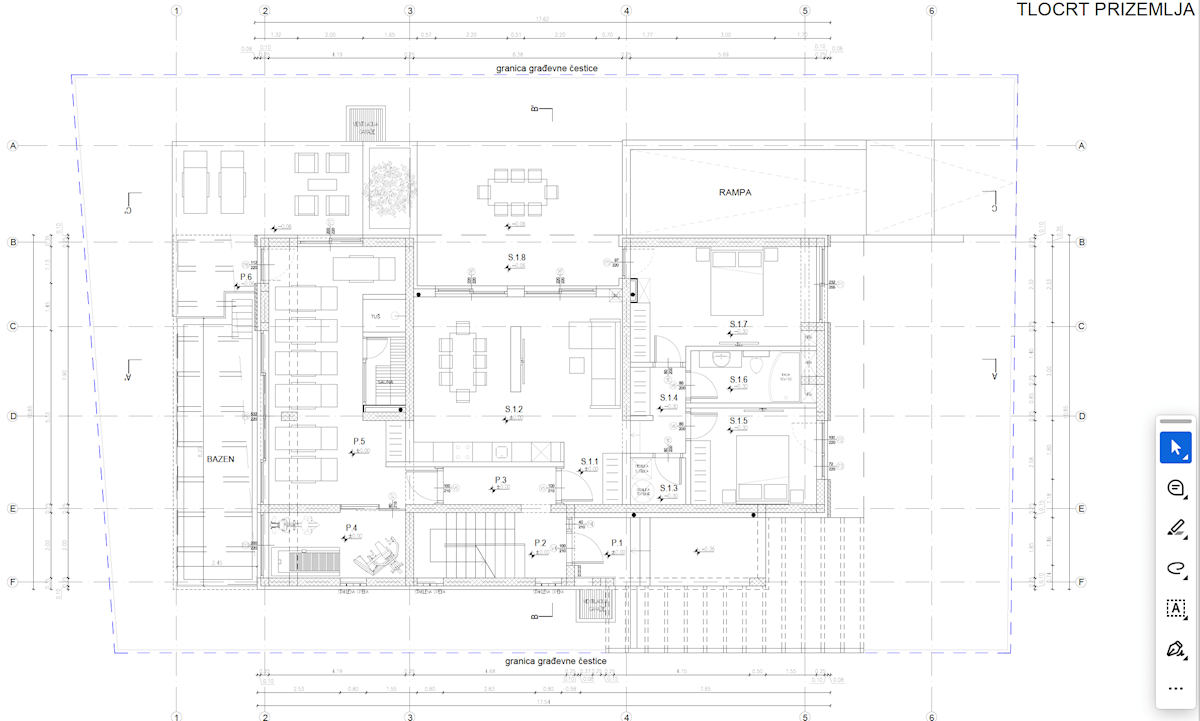
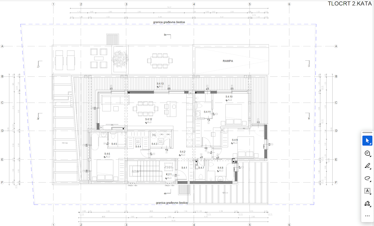
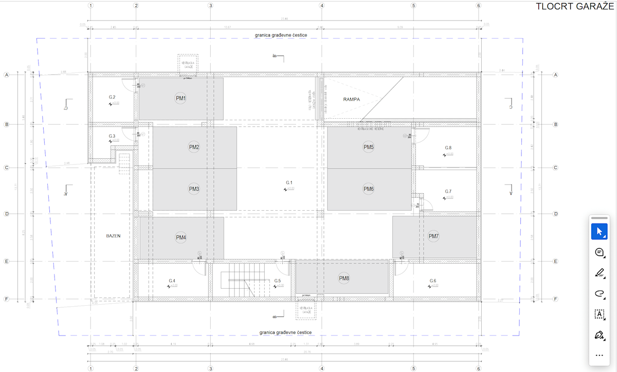
Na mirni lokaciji v manjšem naselju v Umagu nastaja luksuzen in sodoben stanovanjski projekt, ki združuje elegantno estetiko, funkcionalnost in vrhunsko udobje. Stavba obsega garažo, pritličje, prvo in drugo nadstropje ter skupaj štiri stanovanja: eno v pritličju, dve v prvem nadstropju in prostoren penthouse v drugem nadstropju s pogledom na morje. Vsakemu stanovanju pripadata dve parkirni mesti v garaži ter lastna shramba. V pritličju se nahaja ekskluziven skupni wellness prostor s savno, tušem, fitnesom, sprostitvenim predelom in zunanjim bazenom, ki se lahko, zlasti pozimi, zapre s pergolo. Stanovanja se prodajajo popolnoma dokončana, “na ključ”, kar prihodnjim lastnikom omogoča udobno in brezskrbno vselitev.
ID: 1270367