Hiša - UMAG - 680.000 EUR
| Lokacija | UMAG, Istrska |
| Cena € | 680.000 |
| Površina | 184 m2 |
| Število sob | 3 |
| Površina parcele | 366 m2 |
| Število kopalnic | 2 |
| Blizu plaže | DA |
| Oddaljenost od morja | 0 m |
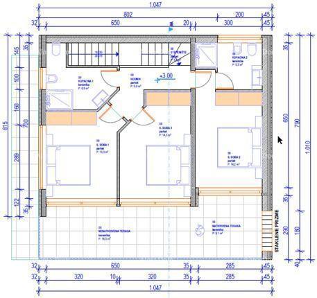
Na prodajo je moderna samostojna vila v gradnji na ekskluzivni lokaciji blizu Umaga, le nekaj minut hoje od plaže. Ta nepremičnina ponuja idealno kombinacijo razkošja, udobja in zasebnosti. Vila obsega 180 m², razporejenih v dveh nadstropjih – v pritličju se nahajajo dnevna soba, kuhinja, WC, tehnična soba, shramba in pokrita terasa, medtem ko prvo nadstropje obsega tri spalnice, dve kopalnici, garderobo in teraso s pogledom. Ogrevanje je zagotovljeno s talnim ogrevanjem s toplotno črpalko, hlajenje pa s klimatsko napravo. V dvorišču sta predvideni dve parkirni mesti. Vila se gradi v sistemu visokega roh-baua, kupcu pa je omogočena izbira končnih materialov in notranje opreme po lastnih željah. Redka priložnost za življenje ali naložbo ob Jadranu, v bližini vseh storitev, ki jih ponuja Umag. Za dodatne informacije, prosimo, kontaktirajte: Azra: +385 91 611 5706 +385 98 420 885 azra@almadominvest.com
ID: 1245820