Stanovanje - TURANJ - 230.000 EUR
| Lokacija | TURANJ, SVETI FILIP I JAKOV, Zadarska |
| Cena € | 230.000 |
| Površina | 60 m2 |
| Število sob | 3 |
| Število kopalnic | 1 |
| Oddaljenost od morja | 0 m |
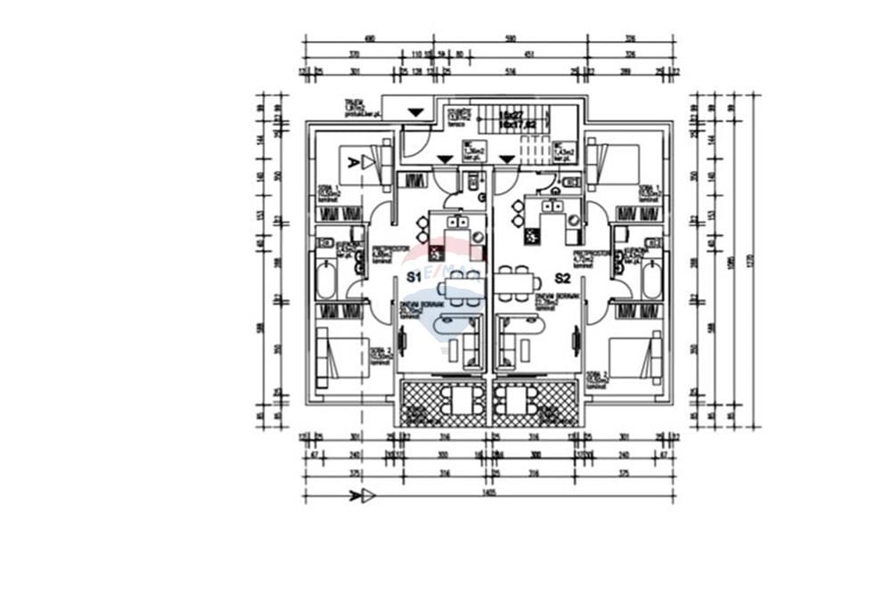
Naprodaj je moderno dvosobno stanovanje v gradnji, ki se nahaja na odlični lokaciji v Turnju, občina Sveti Filip i Jakov. Stanovanje z oznako S2 se nahaja v pritličju manjše stanovanjske stavbe s skupno tremi stanovanjskimi enotami. Skupna površina stanovanja je 55,37 m², z dodatno teraso velikosti 5,46 m². Razporeditev vključuje prostorno dnevno sobo s kuhinjo in jedilnico, dve udobni spalnici, kopalnico in ločeno stranišče za goste. Pri gradnji bodo uporabljeni visokokakovostni materiali v skladu z najvišjimi standardi sodobne gradnje. Stavba bo imela armiranobetonsko konstrukcijo z 10 cm debelo termo fasado, troslojno PVC stavbno pohištvo in varnostna vrata. Stanovanje ima zavarovano parkirno mesto, oddaljenost od morja in centra mesta pa je le 300 metrov zračne črte. Zasebni bazen na dvorišču daje tej nepremičnini posebno vrednost. V okviru projekta so na voljo tudi druga stanovanja: S1 - pritličje, dvosobno stanovanje z bazenom, 60 m2 230.000,00 € S3 - penthouse 85,50 m2 s strešno teraso 45,75 m2 350.000,00 € Za več informacij nas kontaktirajte na 098/164-2222
ID: 1262479