Stanovanje - TURANJ - 230.000 EUR
| Lokacija | TURANJ, SVETI FILIP I JAKOV, Zadarska |
| Cena € | 230.000 |
| Površina | 62 m2 |
| Število sob | 5 |
| Število kopalnic | 1 |
| Oddaljenost od morja | 0 m |
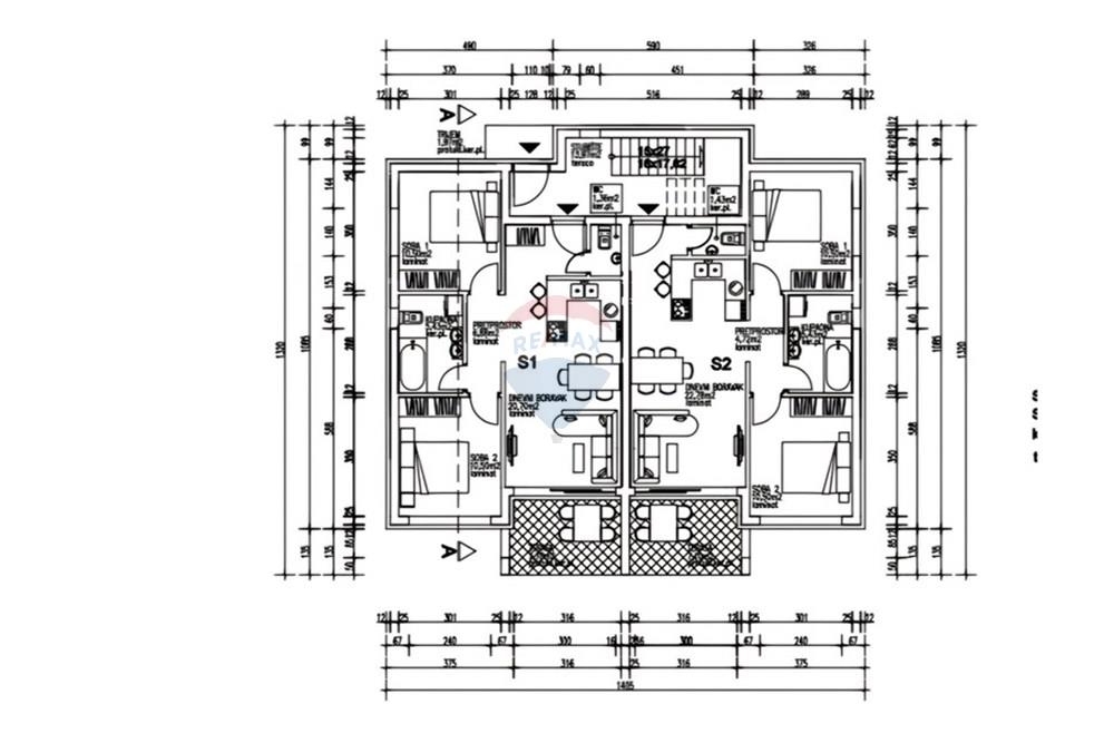
Naprodaj je moderno dvosobno stanovanje v gradnji, ki se nahaja v Turnju, občina Sveti Filip i Jakov. Stanovanje z oznako S1 se nahaja v pritličju manjše stanovanjske stavbe s skupno petimi stanovanjskimi enotami. Skupna površina stanovanja je 55,37 m², z dodatno teraso velikosti 7,10 m². Razporeditev vključuje prostorno dnevno sobo s kuhinjo in jedilnico, dve udobni spalnici, kopalnico in ločeno stranišče za goste. Pri gradnji bodo uporabljeni visokokakovostni materiali v skladu z najvišjimi standardi sodobne gradnje. Stavba bo imela armiranobetonsko konstrukcijo z 10 cm debelo termo fasado, troslojno PVC stavbno pohištvo in varnostna vrata. Stanovanje ima zavarovano parkirno mesto, oddaljenost od morja in centra mesta pa je le 300 metrov zračne črte. Zasebni bazen na dvorišču daje tej nepremičnini posebno vrednost. V okviru projekta so na voljo tudi druga stanovanja: S2 - pritličje, dvosobno stanovanje z bazenom 62 m2 230.000,00 € S3 - prvo nadstropje, dvosobno stanovanje 65 m2 - 190.000,00 € S4 - prvo nadstropje, dvosobno stanovanje 62 m2 - 190.000,00 € S5 - penthouse 85,50 m2 + strešna terasa 49,40 m2 - 350.000,00 € Za več informacij nas kontaktirajte na 098/164-2222
ID: 1262477