Stanovanje - TURANJ - 190.000 EUR
| Lokacija | TURANJ, SVETI FILIP I JAKOV, Zadarska |
| Cena € | 190.000 |
| Površina | 65 m2 |
| Število sob | 5 |
| Število kopalnic | 1 |
| Oddaljenost od morja | 0 m |
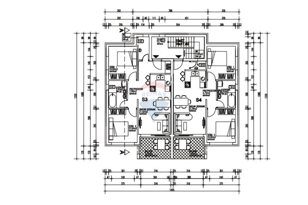
Naprodaj je moderno dvosobno stanovanje v gradnji v Turnju, občina Sveti Filip i Jakov. Stanovanje z oznako S3 se nahaja v prvem nadstropju manjše stanovanjske stavbe s skupno petimi stanovanjskimi enotami. Skupna površina stanovanja je 58,35 m², z dodatno teraso velikosti 7,10 m². Razporeditev vključuje prostorno dnevno sobo s kuhinjo in jedilnico, dve udobni spalnici, kopalnico in ločeno stranišče za goste. Pri gradnji bodo uporabljeni visokokakovostni materiali v skladu z najvišjimi standardi sodobne gradnje. Stavba bo imela armiranobetonsko konstrukcijo z 10 cm debelo termo fasado, troslojno PVC stavbno pohištvo in varnostna vrata. Stanovanje ima zavarovano parkirno mesto, oddaljenost od morja in centra mesta pa je le 300 metrov zračne črte. V okviru projekta so na voljo tudi druga stanovanja: S1 - pritličje, dvosobno stanovanje z bazenom 62 m2 230.000,00 € S2 - pritličje, dvosobno stanovanje z bazenom 62 m2 230.000,00 € S4 - prvo nadstropje, dvosobno stanovanje 62 m2 - 190.000,00 € S5 - penthouse 85,50 m2 + strešna terasa 49,40 m2 - 350.000,00 € Za več informacij nas kontaktirajte na 098/164-2222
ID: 1262474