Stanovanje - TRIBUNJ - 398.008 EUR
| Lokacija | TRIBUNJ, Šibeniško-kninska |
| Cena € | 398.008 |
| Površina | 92 m2 |
| Število sob | 4 |
| Površina parcele | 100 m2 |
| Število kopalnic | 4 |
| Bližina prevoza | DA |
| Oddaljenost od morja | 650 m |
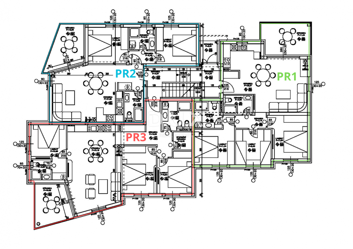
ŠIBENIK, TRIBUNJ – Luksuzno stanovanje z bazenom v novogradnji V Tribunju pri Šibeniku se prodaja stanovanje v pritličju novogradnje z bazenom. Stanovanje se nahaja v večstanovanjski stavbi s skupno 9 stanovanjskimi enotami. Stavba se razteza čez skupno štiri nadstropja: klet (s shrambami za vsako stanovanje), pritličje (tri stanovanjske enote z bazeni) in dve nadstropji (vsako s tremi stanovanjskimi enotami s čudovitim pogledom na morje). Stavba je trenutno v gradnji in bo predvidoma dokončana do konca leta 2026. Stanovanje PR1 ima skupno uporabno površino 92,56 m2 in je sestavljeno iz odprtega dnevnega prostora, kuhinje in jedilnice, iz katerega je dostop do terase in čudovitega dvorišča z lastnim bazenom in vrtom, ter treh spalnic in dveh kopalnic, od katerih ena pripada glavni spalnici. Stanovanju pripada tudi shramba v kleti stavbe in eno zasebno parkirno mesto na dvorišču stavbe. Pri gradnji se uporabljajo le najkakovostnejši materiali, stanovanja pa se prodajajo na ključ. Investitor ima za seboj številne uspešno zaključene projekte, kar kaže na kakovost gradnje in zaključnih del. Vsako stanovanje bo imelo talno ogrevanje po celotnem stanovanju, split sistem klimatskih naprav v vseh prostorih, varnostna vrata, aluminijasto stavbno pohištvo s troslojnim steklom, komarnike in električne rolete, aluminijaste dvižno-drsne balkonske stene, tla obložena z naravnim kamnom, moderno kopalniško opremo, TV priključke v vseh spalnicah in dnevnih sobah, steklene ograje na terasah in EPS fasado z minimalno debelino 10 cm. Nepremičnina se nahaja na čudoviti mikrolokaciji, le 650 metrov od plaže in 1500 metrov od središča mesta in marine. V okolici prevladuje nedotaknjena mediteranska pokrajina polj, krasa, oljk in borovcev, zaradi česar je ta lokacija izjemno privlačna in pristna. DDV je vključen v ceno in kupec je oproščen plačila davka na nepremičnine! Središče Vodic je oddaljeno le nekaj kilometrov, Šibenik le 15 km, letališče Zadar pa 58 km, letališče Split pa 66 km, zaradi česar je ta lokacija izjemno dobro povezana. V bližini sta tudi narodna parka Krka in Kornati ter Vransko jezero. Tribunj je slikovita ribiška vasica in turistično središče nedaleč od Vodic in Šibenika, znano po pristnem mediteranskem vzdušju in čudoviti marini. Znano je po starem kamnitem jedru na otočku, ozkih ulicah in tradicionalni arhitekturi. Mesto ponuja mirne počitnice s čistimi plažami, pristno gastronomijo in barvitimi dogodki, kot so oslovske dirke. Za dodatne informacije ali za dogovor o ogledu nas prosimo kontaktirajte. Spoštovane stranke, provizija agencije se zaračunava v skladu s Splošnimi pogoji poslovanja: www.dux-nekretnine.hr/opci-uvjeti-poslovanja
ID: 1247539