Stanovanje - TRIBUNJ - 388.752 EUR
| Lokacija | TRIBUNJ, Šibeniško-kninska |
| Cena € | 388.752 |
| Površina | 92 m2 |
| Število sob | 4 |
| Število kopalnic | 2 |
| Oddaljenost od morja | 650 m |
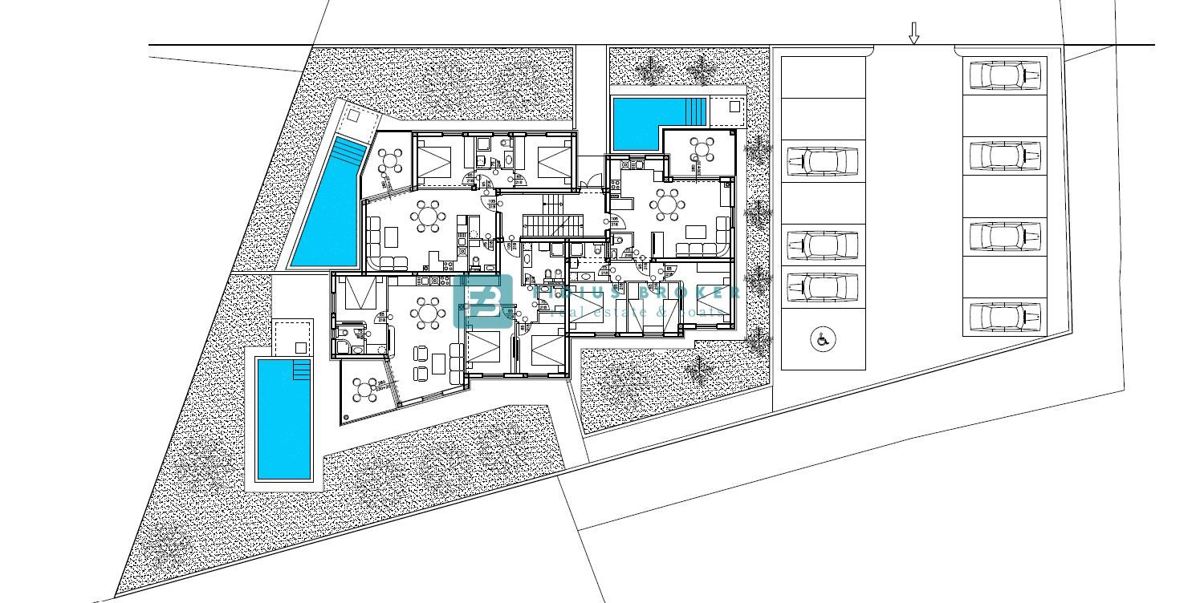
TRIBUNJ - Naprodaj luksuzno stanovanje s tremi spalnicami in teraso, le 650 m od plaže in 1500 m od centra! Začela se je gradnja modernega stanovanjskega bloka s skupno 9 stanovanjskimi enotami. Stanovanjski blok bo sestavljen iz štirih nadstropij: klet + pritličje + 1. nadstropje + 2. nadstropje. Stavba se gradi s kakovostnimi materiali in bo opremljena po najnovejših gradbenih standardih: polistirenska fasada, varnostna vrata, ALU stavbno pohištvo s troslojnim steklom, ALU balkonska drsna vrata, električne rolete, tla obložena z naravnim kamnom Plano, moderna kopalniška oprema, klimatska naprava v spalnicah in dnevni sobi, TV priključek v spalnicah in dnevni sobi, talno ogrevanje v vseh sobah, steklene ograje na terasah. Vsakemu stanovanju pripada eno zunanje parkirno mesto. Predvideni datum dokončanja in vselitve - poletje 2026. Stanovanje 1K1 s skupno uporabno površino 92,56 m2 se nahaja v 1. nadstropju in je orientirano proti severovzhodu. Funkcionalno razporejeno stanovanje obsega predsobo, hodnik, tri spalnice, stranišče, kopalnico, prostorno kuhinjo z jedilnico, dnevno sobo z izhodom na pokrito teraso velikosti 11,24 m2 s pogledom na morje. Stanovanju pripada tudi shramba v kleti stavbe in eno zunanje parkirno mesto. Cena je 388.752 € (DDV vključen - kupec je oproščen plačila 3 % davka na nepremičnine). DRUGO NA VOLJO V STAVBI Stanovanje 1K1 s skupno uporabno površino 92,56 m2 se nahaja v 1. nadstropju in je orientirano proti severovzhodu. Funkcionalno razporejeno stanovanje obsega predsobo, hodnik, tri spalnice, stranišče, kopalnico, prostorno kuhinjo z jedilnico, dnevno sobo z izhodom na pokrito teraso velikosti 11,24 m2 s pogledom na morje. Stanovanju pripada tudi shramba v kleti stavbe in eno zunanje parkirno mesto. Cena je 388.752 € (DDV vključen - kupec je oproščen plačila 3 % davka na nepremičnine). PRITLIČJE Stanovanje PR1 s skupno uporabno površino 92,56 m2 se nahaja v pritličju in je orientirano proti severovzhodu. Funkcionalno zasnovano stanovanje sestavljajo predsoba, hodnik, tri spalnice, stranišče, kopalnica, prostorna kuhinja z jedilnico, dnevna soba z dostopom na pokrito teraso velikosti 11,24 m2 s pogledom na morje, 100 m2 dvorišče in 15 m2 bazen. Stanovanju pripada tudi shramba v kleti stavbe in eno zunanje parkirno mesto. Cena je 398.008 € (DDV vključen - kupec je oproščen plačila 3% davka na nepremičnine). Stanovanje PR2 - PRODANO Stanovanje PR3 s skupno uporabno površino 100,51 m2 se nahaja v pritličju in je orientirano proti jugu. Funkcionalno zasnovano stanovanje sestavljajo predsoba, hodnik, tri spalnice, stranišče, dve kopalnici, prostorna kuhinja z jedilnico, dnevna soba z dostopom na pokrito teraso velikosti 10,02 m2 s pogledom na morje, 150 m2 dvorišče in 20 m2 bazen. Stanovanju pripada tudi shramba v kleti stavbe in eno zunanje parkirno mesto. Cena je 432.193 € (z vključenim DDV - kupec je oproščen plačila 3 % davka na nepremičnine). 1. NADSTROPJE Stanovanje 1K2 s skupno uporabno površino 78,7 m2 se nahaja v 1. nadstropju in je orientirano proti jugozahodu. Funkcionalno razporejeno stanovanje obsega predsobo, hodnik, dve spalnici, stranišče, kopalnico, prostorno kuhinjo z jedilnico, dnevno sobo z izhodom na pokrito teraso velikosti 10,06 m2 s pogledom na morje. Stanovanju pripada tudi shramba v kleti stavbe in eno zunanje parkirno mesto. Cena je 330.540 € (z vključenim DDV - kupec je oproščen plačila 3 % davka na nepremičnine). Stanovanje 1K3 s skupno uporabno površino 100,51 m2 se nahaja v 1. nadstropju in je orientirano proti jugu. Funkcionalno zasnovano stanovanje obsega predsobo, hodnik, tri spalnice, stranišče, dve kopalnici, prostorno kuhinjo z jedilnico, dnevno sobo z dostopom na pokrito teraso velikosti 10,02 m2 s pogledom na morje. Stanovanju pripada tudi shramba v kleti stavbe in eno zunanje parkirno mesto. Cena je 422.142 € (DDV vključen - kupec je oproščen plačila 3 % davka na nepremičnine). 2. NADSTROPJE Stanovanje 2K1 s skupno uporabno površino 92,56 m2 se nahaja v 2. nadstropju in je orientirano proti severovzhodu. Funkcionalno zasnovano stanovanje obsega predsobo, hodnik, tri spalnice, stranišče, kopalnico, prostorno kuhinjo z jedilnico, dnevno sobo z dostopom na pokrito teraso velikosti 11,24 m2 s pogledom na morje. Stanovanju pripada tudi shramba v kleti stavbe in eno zunanje parkirno mesto. Cena je 398.008 € (z vključenim DDV - kupec je oproščen plačila 3 % davka na nepremičnine). Stanovanje 2K2 s skupno uporabno površino 78,7 m2 se nahaja v 2. nadstropju in je orientirano proti jugozahodu. Funkcionalno zasnovano stanovanje obsega predsobo, hodnik, dve spalnici, stranišče, kopalnico, prostorno kuhinjo z jedilnico, dnevno sobo z izhodom na pokrito teraso velikosti 10,06 m2 s pogledom na morje. Stanovanju pripada tudi shramba v kleti stavbe in eno zunanje parkirno mesto. Cena je 338.410 € (z vključenim DDV - kupec je oproščen plačila 3 % davka na nepremičnine). Stanovanje 2K3 s skupno uporabno površino 100,51 m2 se nahaja v 2. nadstropju in je orientirano proti jugu. Funkcionalno zasnovano stanovanje obsega predsobo, hodnik, tri spalnice, stranišče, dve kopalnici, prostorno kuhinjo z jedilnico, dnevno sobo.
ID: 1228495