Stanovanje - TRIBUNJ - 332.430 EUR
| Lokacija | TRIBUNJ, Šibeniško-kninska |
| Cena € | 332.430 |
| Površina | 110 m2 |
| Število sob | 3 |
| Površina parcele | 12 m2 |
| Število kopalnic | 1 |
| Bližina prevoza | DA |
| Oddaljenost od morja | 350 m |
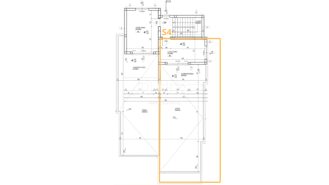
TRIBUNJ, SOVLJA - Stanovanje s strešno teraso v bližini plaže, pogled na morje V majhnem mestu Sovlje blizu Tribunja se prodaja dvonadstropno stanovanje s strešno teraso v novogradnji. Stanovanje se nahaja v manjši stanovanjski stavbi s 4 stanovanjskimi enotami. Stavba je sestavljena iz treh nadstropij - pritličja, 1. nadstropja in 2. nadstropja s strešno teraso. Dve stanovanji se nahajata v pritličju, druga dva stanovanja pa v 1. nadstropju in imata vsako dostop do lastne strešne terase. Stanovanje S4 ima skupno uporabno površino 110,79 m2 (80,24 m2 bivalnega prostora + 77,84 m2 terase + 12 m2 parkirnega mesta) in se nahaja v 1. in 2. nadstropju stavbe ter je orientirano proti jugovzhodu. V 1. nadstropju sta dve spalnici, kopalnica, hodnik in kuhinja z jedilnico ter dnevno sobo tipa "odprt prostor" z dostopom na teraso velikosti 13,01 m2 s pogledom na morje. Do 2. nadstropja - strešne terase se pride po notranjem skupnem stopnišču in je sestavljena iz letne kuhinje velikosti 14,58 m2 in delno pokrite strešne terase velikosti 64,83 m2 s čudovitim panoramskim pogledom na morje. Stanovanju pripada tudi eno parkirno mesto na dvorišču stavbe, obstaja pa možnost nakupa dodatnega parkirnega mesta. Stanovanja bodo opremljena s klimatsko napravo v vseh sobah, električnim talnim ogrevanjem v dnevni sobi in kopalnici, varnostnimi vrati, visokokakovostnim PVC stavbnim pohištvom v antracitni barvi z električnimi roletami in komarniki, toplotno izolacijo najmanj 10 cm, visokokakovostno keramiko v vseh sobah in moderno kopalniško opremo. Predviden zaključek in vselitev sta konec leta 2026. Nepremičnina se nahaja na mirni lokaciji, le 400 metrov od morja in središča mesta. V okolici prevladuje nedotaknjena mediteranska pokrajina polj, krasa, oljk in borovcev, zaradi česar je ta lokacija izjemno privlačna in pristna. Vodice so oddaljene le nekaj kilometrov, središče Šibenika je oddaljeno le 16 km, letališče Zadar pa 58 km, letališče Split pa 66 km, zaradi česar je ta lokacija izjemno dobro povezana. V bližini sta tudi narodna parka Krka in Kornati ter Vransko jezero. Tribunj je slikovita ribiška vasica in turistično središče nedaleč od Vodic in Šibenika, znano po pristnem mediteranskem vzdušju in čudoviti marini. Znano je po starem kamnitem jedru na otočku, ozkih ulicah in tradicionalni arhitekturi. Kraj ponuja miren oddih s čistimi plažami, pristno gastronomijo in barvitimi dogodki, kot so oslovske dirke. Za dodatne informacije ali za dogovor o ogledu nas prosimo kontaktirajte. Spoštovane stranke, provizija agencije se obračunava v skladu s Splošnimi pogoji poslovanja: www.dux-nekretnine.hr/opci-uvjeti-poslovanja
ID: 1258279