Hiša - TRIBUNJ - 590.000 EUR
| Lokacija | TRIBUNJ, Šibeniško-kninska |
| Cena € | 590.000 |
| Površina | 215 m2 |
| Število sob | 3 |
| Število kopalnic | 4 |
| Bližina prevoza | DA |
| Blizu plaže | DA |
| Oddaljenost od morja | 0 m |
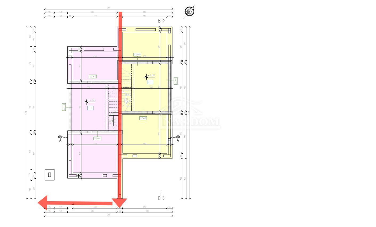
Vodice, Tribunj - *NOVOGRADNJA* prodaja se dvojna kuća. Kuća modernog izgleda gradi se kvalitetnim materijalima prema posljednjem standardu gradnje: stiropor fasada, ALU stolarija, komarnici, rolete s pel. podizačima, talijanska keramika, sat/tv priključci u spavaćim sobama i dnevnom boravku, INVERETER klima u spavaćim sobama i dnevnom boravku, instalacija za jacuzzi na krovnoj terasi... Kuća se nalazi na super lokaciji, u blizini svih sadržaja bitnih za ugodan boravak. Najbliža plaža je udaljena svega 400m, a centar Tribunja oko 350m. Planirani rok završetka gradnje je kraj 2025. godine. S1 kuća ima neto površinu 215,12 m2 i sastoji se od 4 etaže: podrum + prizemlje + kat + II. kat. Prizemlje se sastoji od predsoblje, hodnik i stubište, kupaonica, kuhinja s blagovaonicom i dnevni boravak s izlazom na natkrivenu terasu. I. kat se sastoji od hodnika, master spavaća soba s vlastitom kupaonicom i izlazom na terasu, te dvije spavaće sobe svaka s zasebnom kupaonicom. Na II etaži se nalazi krovna terasa s ljetnom kuhinjom i wc-om. Na krovnoj terasi će biti postavljene i instalacije za jacuzzi. S2 kuća ima neto površinu 209,13 m2 i sastoji se od 4 etaže: podrum + prizemlje + kat + II. kat. Prizemlje se sastoji od predsoblje, hodnik i stubište, kupaonica, kuhinja s blagovaonicom i dnevni boravak s izlazom na natkrivenu terasu. I. kat se sastoji od hodnika, master spavaća soba s vlastitom kupaonicom i izlazom na terasu, te dvije spavaće sobe svaka s zasebnom kupaonicom. Na II etaži se nalazi krovna terasa s ljetnom kuhinjom i wc-om. Na krovnoj terasi će biti postavljene i instalacije za jacuzzi. ID KOD AGENCIJE: 1504 Naš dom Mob: +385 91 443 8701, +385 91 723 5581, +385 91 602 3656 Tel: +385 22 443 870 E-mail: nasdom22@gmail.com www.nasdom-vodice.com Dodatne informacije: Voda: da Gradski vodovod: da Telefon: da Klima uređaj: da Struja: da Asfaltni put: da Gradska kanalizacija: da Energetski razred: A Vlasnički list: da Lokacijska dozvola: da Građevinska dozvola: da Uporabna dozvola: da Parkirna mjesta: da Vrt: da Park: da Pošta: da Banka: da Trgovina: da Blizina mora: da Fitness: da Igralište: da Udaljenost od mora: 400 Vrtić: da Škola: da Javni prijevoz: da Terasa: da Površina terase: 54,56 Godina izgradnje: 2023 Tip kuće: dvojna Pogled na more: da Broj etaža: 3 Novogradnja: da
ID: 1137618