Parcela - TINJAN - 57.000 EUR
| Lokacija | TINJAN, Istrska |
| Cena € | 57.000 |
| Površina | 602 m2 |
| Bližina prevoza | DA |
| Oddaljenost od morja | 0 m |
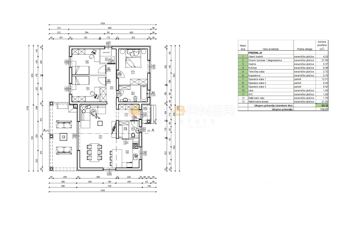
Na prodaj: Gradbeno zemljišče v Tinjanu z idejnim projektom za hišo velikosti 100m2. Površina zemljišča je 602 m2. Parcela se nahaja v majhnem, mirnem naselju imenovanem Kringa. Do zemljišča vodi dostopna cesta. Vsa infrastruktura je približno 40m stran od zemljišča. Parcela ima odprt pogled na naravo, obdana z zelenjem. Zemljišče je obrnjeno proti jugu. Najbližje naselje s trgovino je oddaljeno 300m. Oddaljenost od morja je 20km. Kupec plača dogovorjeno kupnino skupaj z dogovorjeno agencijsko provizijo v skladu z pogoji in pristojbinami podjetja. Čista lastnina, brez bremen! Kontakt: Dean +385 99 369 9053
ID: 1055237