Parcela - TINJAN - 160.000 EUR
| Lokacija | TINJAN, Istrska |
| Cena € | 160.000 |
| Površina | 1150 m2 |
| Oddaljenost od morja | 0 m |
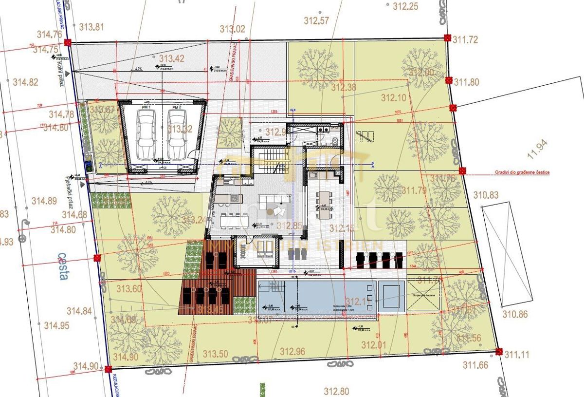
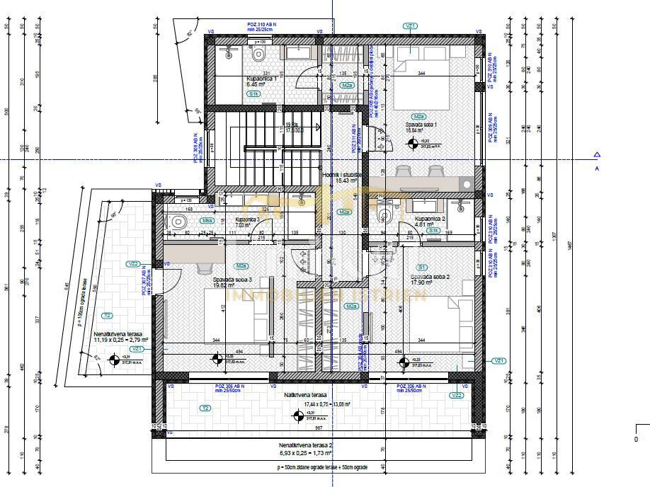
Lokacija zemljišča: Ta gradbena parcela se nahaja v Tinjanu, 21 km oddaljena od morja in Poreča. Parcela je čista in lepe pravokotne oblike. Soseska je urejena in večinoma sestavljena iz družinskih hiš. Projekt hiše: V gradbenem projektu je predvidena družinska hiša z garažo in bazenom. Hiša bi imela klet, pritličje in nadstropje s skupno bivalno površino 254 m2. V kleti so predvideni prostor za wellness, shramba in WC. V pritličju bo prostorna dnevna soba s kuhinjo in jedilnico, prostor za fitnes, gostinski WC s pralnico ter tehnična soba. Iz dnevne sobe je predviden direkten dostop do pokrite terase z zunanjo kuhinjo, ki se nadaljuje proti bazenu s sončno teraso. V nadstropju bi bile tri spalnice, vsaka s svojo zasebno kopalnico in garderobno sobo. Dve sobi bosta imeli izhod na pokrit balkon. Vrt in okolica: Pred hišo je načrtovana garaža za dva vozila, na drugi strani hiše pa bazen s sončno teraso. Preostali del zemljišča bo urejen z zelenjem. Ostalo: Prodaja se zemljišče s pripravljenim projektom za gradnjo in gradbenim dovoljenjem za projekt. Priključki za vodo in elektriko so plačani. Prikazane slike služijo kot primer.
ID: 1255759