Parcela - TINJAN - 160.000 EUR
| Lokacija | TINJAN, Istrska |
| Cena € | 160.000 |
| Površina | 1153 m2 |
| Oddaljenost od morja | 20000 m |
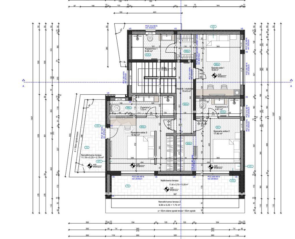
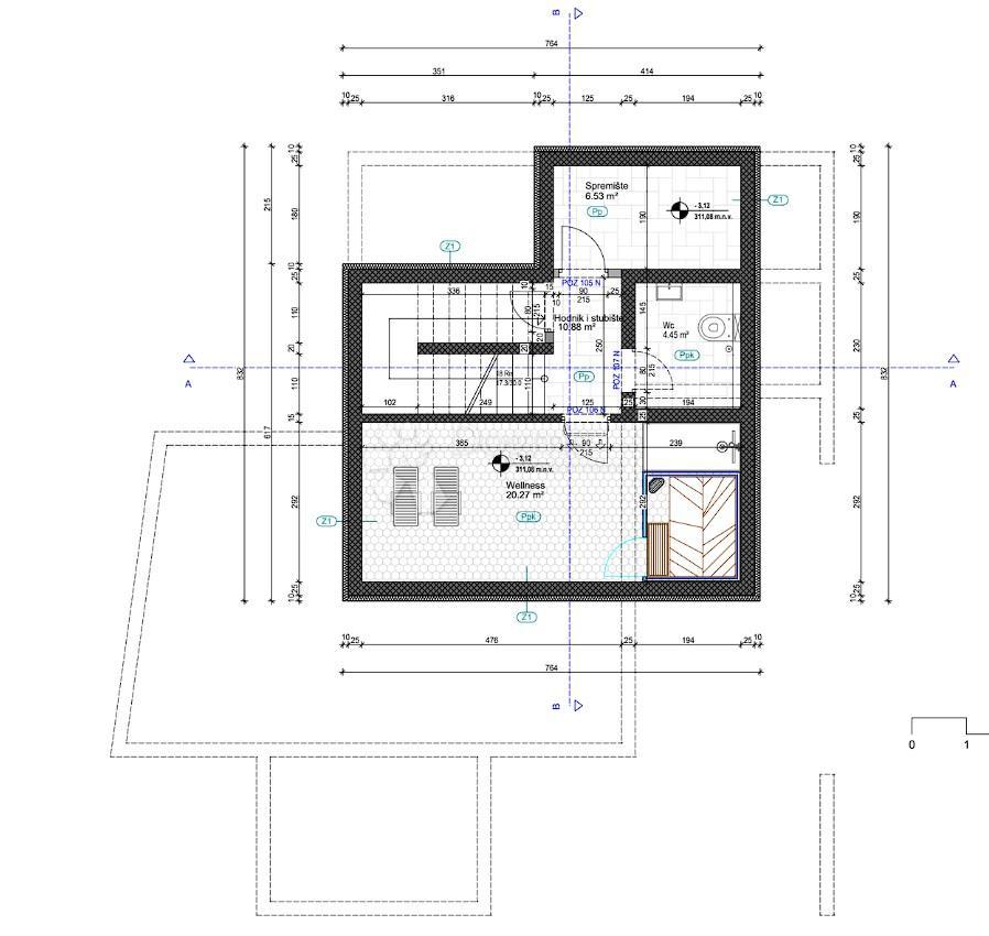
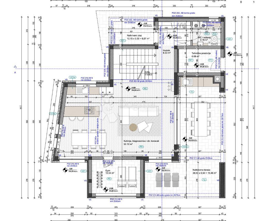
Gradbena parcela z dovoljenjem za luksuzno vilo – okolica Poreča Naprodaj je gradbena parcela s skupno površino 1.153 m², ki se nahaja v širši okolici Poreča, z izdanim in pravnomočnim gradbenim dovoljenjem iz leta 2024. Zahvaljujoč že pripravljeni dokumentaciji in plačanim komunalnim prispevkom je gradnja mogoča takoj, kar to ponudbo naredi zelo privlačno za investitorje in zasebne kupce. Po odobrenem projektu je predvidena izgradnja moderne luksuzne vile z bazenom in garažo, skupne neto površine 254,31 m², razporejene na treh etažah: Klet (42,13 m²) – načrtovana wellness & spa cona za sprostitev in zasebnost. Pritličje (104,29 m²) – prostorna dnevna soba, kuhinja in jedilnica v odprtem konceptu z izhodom na teraso in bazen. Prvo nadstropje (107,89 m²) – štiri spalnice, od tega dve glavni spalnici, vsaka s svojo kopalnico. Dodatno je predvidena garaža površine 43,28 m², ki omogoča praktično parkiranje in shranjevanje. Poseben poudarek projekta je bazen s skupno površino 45,99 m², od tega je 37,05 m² namenjenih plavalnemu delu, 7,50 m² pa jacuzzi coni. Lokacija ponuja mirno in varno okolje, hkrati pa zagotavlja bližino vseh potrebnih vsebin: šole, vrtca, supermarketov, restavracij, lekarne, pošte in javnega prevoza. Ta gradbena parcela z dokončanim projektom in pravnomočnim dovoljenjem predstavlja odlično priložnost za gradnjo luksuzne rezidence ali investicijo v turistične namene. Za več informacij ali možnosti sodelovanja pri gradnji vile smo vam na voljo.
ID: 1215731