Parcela - TINJAN - 103.500 EUR
| Lokacija | TINJAN, Istrska |
| Cena € | 103.500 |
| Površina | 554 m2 |
| Oddaljenost od morja | 22000 m |
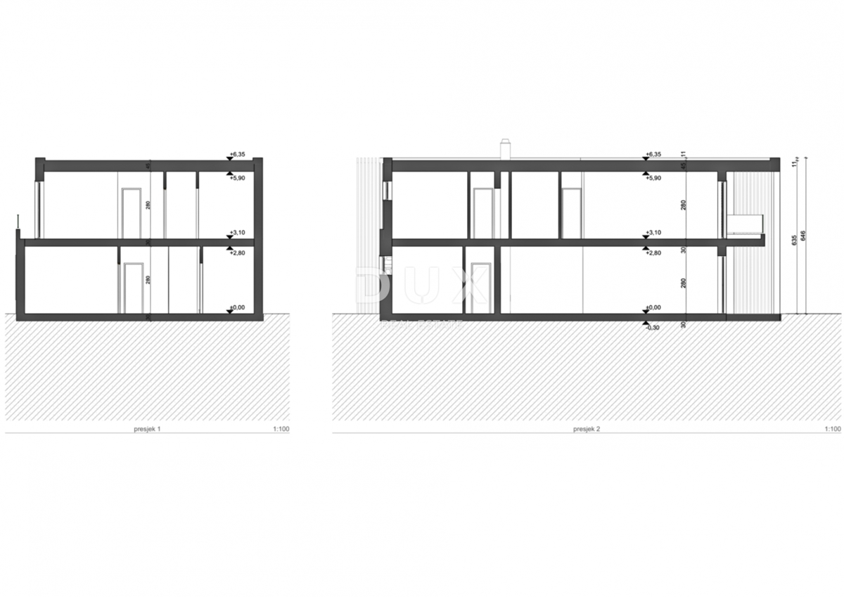
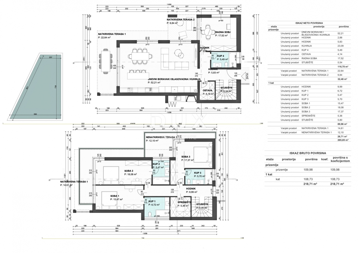
ISTRA, TINJAN - Zemljišče z lokacijskim dovoljenjem Mesto, nekoč obdano z obzidjem in stolpi, je danes kraj z zelo izrazitim šarmom, kjer se ponosno razkazujeta tradicija in zgodovina. Tinjan se nahaja nad zimzeleno Drago, katere lepoto lahko uživate s tinjanskega razgledišča pod staro ladonjo. Občina Tinjan se razprostira na površini 53,94 km² in znotraj občine je 8 naselij. V mirni soseski v bližini Tinjana se prodaja zemljišče z lokacijskim dovoljenjem. Mikrolokacija ponuja pristno doživetje majhnega istrskega mesta, intimnost, olajšanje od vsakega napornega napora in oddih od hrupa, hkrati pa bližino dinamičnih istrskih mest z vrsto ugodnosti. Katastrska parcela je pravokotne oblike, teren pa je raven in čist. Na zemljišču je zgrajena shramba velikosti 25 m², greznica, zemljišče pa vsebuje tudi priključke za vodo in elektriko (trifazni priključek s priključno močjo 11 kW). Zemljišče ima lokacijsko dovoljenje za gradnjo stanovanjskega objekta, ki s svojo umirjeno arhitekturo ne moti okolja, temveč ustvarja sinergijo naravnega okolja in sodobne arhitekture. Zasnovana je bila kot udobna samostojna hiša z eno stanovanjsko enoto, ki se razteza čez dve nadstropji. Zaradi svoje mikrolokacije, konfiguracije, ustreznega lastništva in dokumentacije to zemljišče ponuja izjemno priložnost za gradnjo družinske hiše ali počitniške hiše. Spoštovane stranke, provizija agencije se zaračunava v skladu s Splošnimi pogoji poslovanja: http://www.dux-nekretnine.hr/opci-uvjeti-poslovanja
ID: 1244365