Hiša - TINJAN - 113.500 EUR
| Lokacija | TINJAN, Istrska |
| Cena € | 113.500 |
| Površina | 73 m2 |
| Število sob | 3 |
| Površina parcele | 22 m2 |
| Število kopalnic | 1 |
| Blizu plaže | DA |
| Oddaljenost od morja | 0 m |
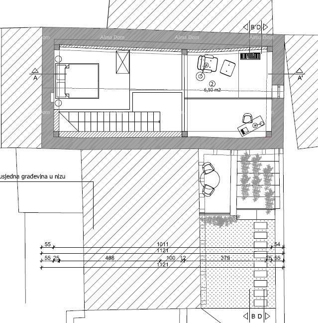
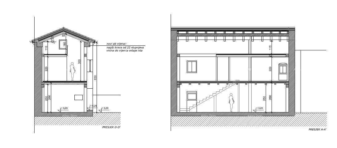
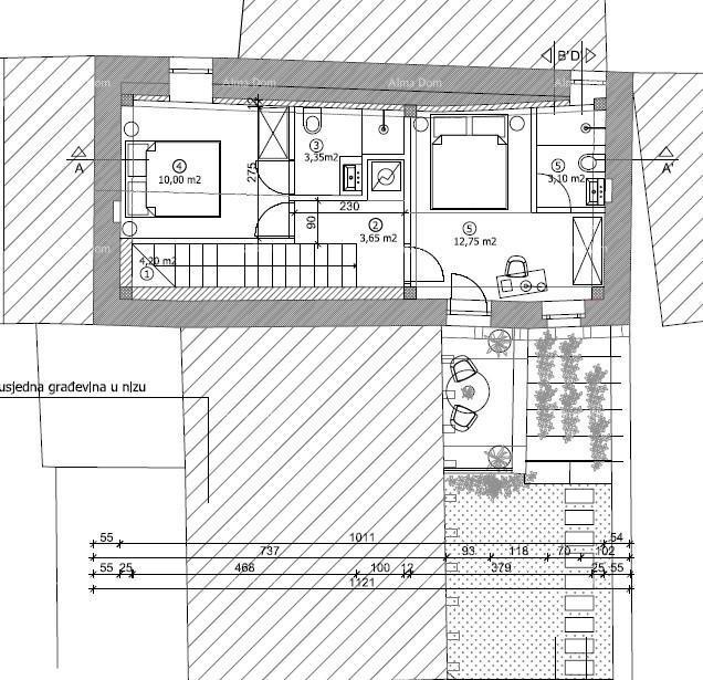
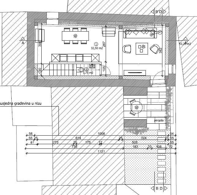
Na prodajo je stara hiša/ruševina z izdelanim projektom rekonstrukcije, na zemljišču površine 95 m², nameščena v manjšem kraju, v bližini Sv. Lovreča in Tinjana. Ta nepremičnina predstavlja idealno priložnost za vlaganje – projekt je že končan, trenutno pa poteka pridobivanje gradbenega dovoljenja. Osnovni podatki: Površina obstoječe ruševine: 73 m² Dvorišče: 22 m² Tlorisna projekcija obstoječe stavbe: 61,65 m² + zunanje stopnišče 11,10 m² Zunanje dimenzije: 11,24 x 5,26 m (stopnišče 7,21 x 1,81 m) Višina do venčnega roba: 6,30 m Projekt rekonstrukcije predvideva gradnjo družinske hiše na treh etažah (pritličje + nadstropje + podstrešje), z eno stanovanjsko enoto in dostopom iz pritličja z zahodne strani. Načrtovano je odstranitev dela zunanjega stopnišča za funkcionalnejšo razporeditev in večjo okućnico, ob ohranjanju avtentičnega značaja stare istrske hiše, prilagojene sodobnemu načinu življenja. Ta nepremičnina ponuja popolno priložnost za ustvarjanje očarljivega doma po lastnih željah – bodisi za družinsko življenje, počitek ali kot privlačna naložba. Za več informacij, prosimo, kontaktirajte: Azra +385 91 611 5706 +385 98 420 885 azra@almadominvest.com
ID: 1222199