Parcela - TAR - 390.000 EUR
| Lokacija | TAR, TAR-VABRIGA, Istrska |
| Cena € | 390.000 |
| Površina parcele | 1239 m2 |
| Oddaljenost od morja | 0 m |
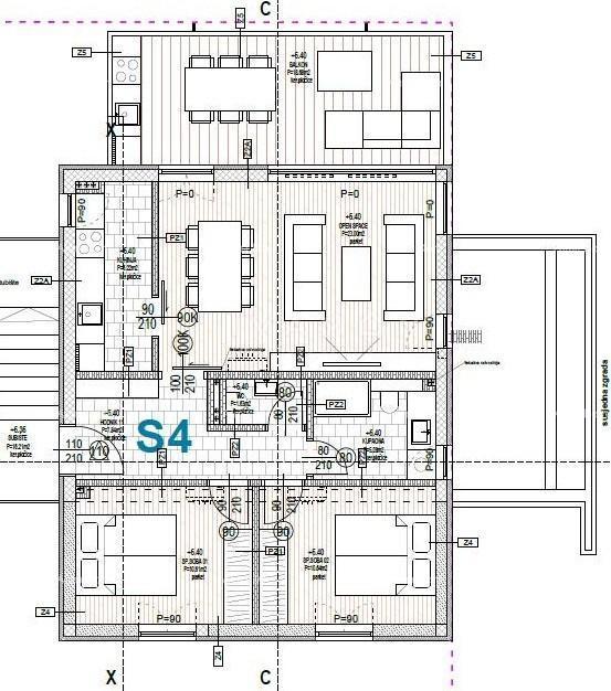
Izjemna priložnost!!! Prodajamo gradbeno zemljišče velikosti 1239 m² v Taru. Zemljišče ima veljavno gradbeno dovoljenje za izgradnjo 8 stanovanj, velikosti od 53 m² do 60 m², vsako s prostornimi terasami in dvema parkirnima mestoma na stanovanje. Parcela se nahaja na odlični lokaciji, le 2 km od morja. Ima odlično pozicijo, z vodovodnim priključkom pred parcelo in električnim priključkom na parceli. Vse komunalne dajatve so plačane. Gradnja se lahko začne takoj!! Za dodatne informacije, prosimo, kontaktirajte: Azra +385 91 611 5706 +385 98 420 885 azra@almadominvest.com
ID: 1246734