Parcela - SVETVINČENAT - 99.500 EUR
| Lokacija | SVETVINČENAT, Istrska |
| Cena € | 99.500 |
| Površina | 526 m2 |
| Oddaljenost od morja | 20000 m |
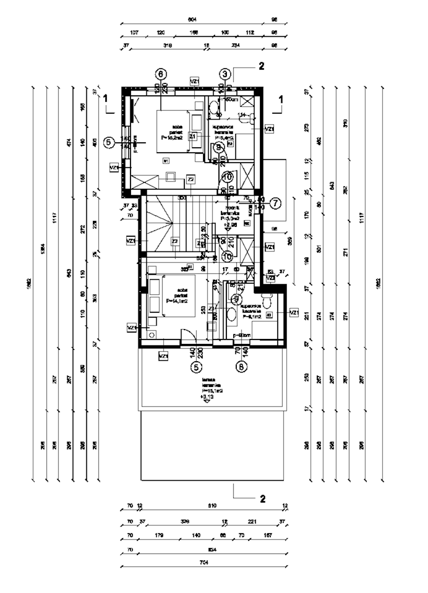
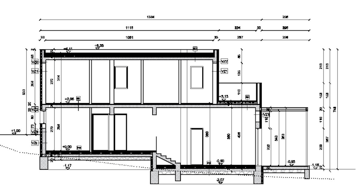
Na prodaj – Stavbno zemljišče z gradbenim dovoljenjem v bližini Svetvinčenta Na atraktivni in mirni lokaciji v bližini Svetvinčenta je naprodaj stavbno zemljišče z že pridobljenim gradbenim dovoljenjem ter urejenimi priključki za vodo in elektriko na parceli. Zemljišče meri 526 m², je pravilne oblike in orientirano sever–jug, kar omogoča optimalno izrabo naravne svetlobe skozi ves dan. Nahaja se na izjemno mirni lokaciji kot zadnje stavbno zemljišče v nizu, obdano le z nekaj objekti, kar zagotavlja zasebnost in odprte, lepe poglede na naravo. Projekt predvideva gradnjo moderne vile etažnosti pritličje + nadstropje (P+1), s tremi spalnicami in bazenom velikosti 30 m². Skupna bruto tlorisna površina znaša 148,33 m², dodatno pa je predvidena terasa velikosti 16 m² – idealna za bivanje na prostem. Ta nepremičnina predstavlja odlično priložnost za gradnjo zasebne počitniške hiše ali kot investicijo za turistični najem, na eni izmed najbolj iskanih lokacij v Istri.
ID: 1272309