Parcela - SVETVINČENAT - 76.000 EUR
| Lokacija | SVETVINČENAT, Istrska |
| Cena € | 76.000 |
| Površina parcele | 472 m2 |
| Blizu plaže | DA |
| Oddaljenost od morja | 0 m |
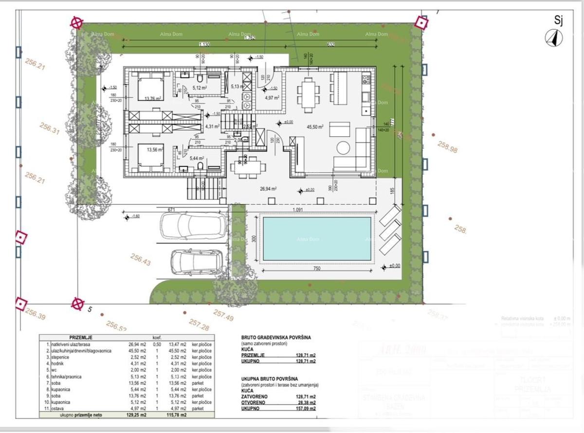
Prodaja gradbenega zemljišča s projektom! V naselju Bibići prodamo gradbeno zemljišče velikosti 472m2. Zemljišče se nahaja le nekaj minut vožnje od Svetvinčentata in ima projekt za gradnjo hiše z bazenom. Gradbeno dovoljenje v postopku pridobivanja. Za več informacij se obrnite na: Azra +385 91 6115706 +385 98 420 885 azra@almadominvest.com
ID: 1259243