Parcela - SVETVINČENAT - 69.000 EUR
| Lokacija | SVETVINČENAT, Istrska |
| Cena € | 69.000 |
| Površina | 353 m2 |
| Oddaljenost od morja | 15000 m |
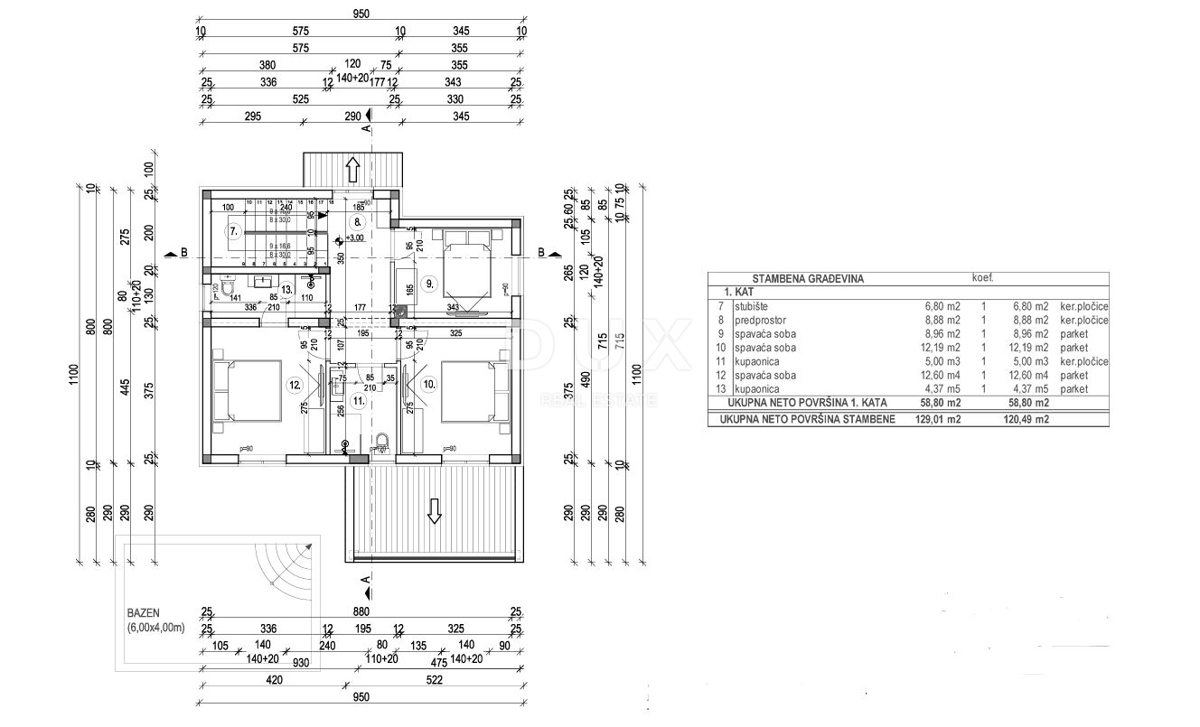
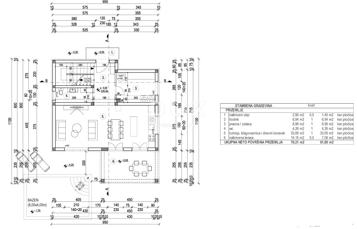
ISTRA, SVETVINČENAT – Zemljišče s pravnomočnim gradbenim dovoljenjem in projektom hiše z bazenom Svetvinčenat, ki se nahaja v osrednji Istri, je znan po svojem zgodovinskem središču, srednjeveškem gradu, kulturnih dogodkih in mirnem načinu življenja. Prav zato postaja vse bolj priljubljena lokacija za družinsko gradnjo, naložbe v turizem in življenje v pristnem istrskem okolju. V mirni vasi v bližini Svetvinčenta se prodaja gradbeno zemljišče velikosti 353 m² s pravnomočnim gradbenim dovoljenjem za gradnjo moderne dvonadstropne hiše z bazenom. Parcela se nahaja v urejeni in mirni vasi, ki jo zaznamuje naravno okolje in odličen dostop. Dostop do parcele je omogočen po makadamski cesti, dolgi približno 100 metrov, ki vodi do asfaltne ceste. Ob dostopni cesti so že nameščene vodovodne, optične in električne inštalacije, vključno s strelovodom, kar močno olajša začetek gradnje. Za to parcelo je pridobljeno gradbeno dovoljenje za hišo s skupno neto površino 129,01 m². V pritličju se nahaja pokrit vhod, hodnik, pralnica, stranišče ter odprta kuhinja, jedilnica in dnevna soba z dostopom na pokrito teraso. Notranje stopnišče vodi v prvo nadstropje, kjer se nahajajo tri spalnice in dve kopalnici - razporeditev, prilagojena sodobnim potrebam za udobno bivanje ali turistično rabo. Tik ob tej nepremičnini sta na voljo še dve gradbeni parceli podobne velikosti, prav tako s končnimi dovoljenji za hiše z bazenom, ki sta na voljo za nakup, kar odpira dodatne možnosti za širitev projekta ali načrtovanje naložb. Nakup je možen posamezno, kot v tem primeru, ali v kombinaciji z drugimi parcelami - idealno za tiste, ki si želijo fleksibilnosti pri uresničevanju lastnih načrtov. Lastnik je pravna oseba, kupec pa ob nakupu ne plača davka na promet nepremičnin. Ta nepremičnina predstavlja odlično priložnost za vse, ki se želijo izogniti dolgotrajnemu postopku pridobivanja dokumentacije in takoj začeti graditi na mirni, dobro povezani in vse bolj iskani lokaciji v Istri. Z dokončanim projektom, rešenim dostopom in infrastrukturo - vse je pripravljeno za gradnjo. Spoštovane stranke, provizija agencije se obračunava v skladu s Splošnimi pogoji poslovanja: http://www.dux-nekretnine.hr/opci-uvjeti-poslovanja
ID: 1226021