Parcela - SVETVINČENAT - 62.000 EUR
| Lokacija | SVETVINČENAT, Istrska |
| Cena € | 62.000 |
| Površina | 305 m2 |
| Oddaljenost od morja | 15000 m |
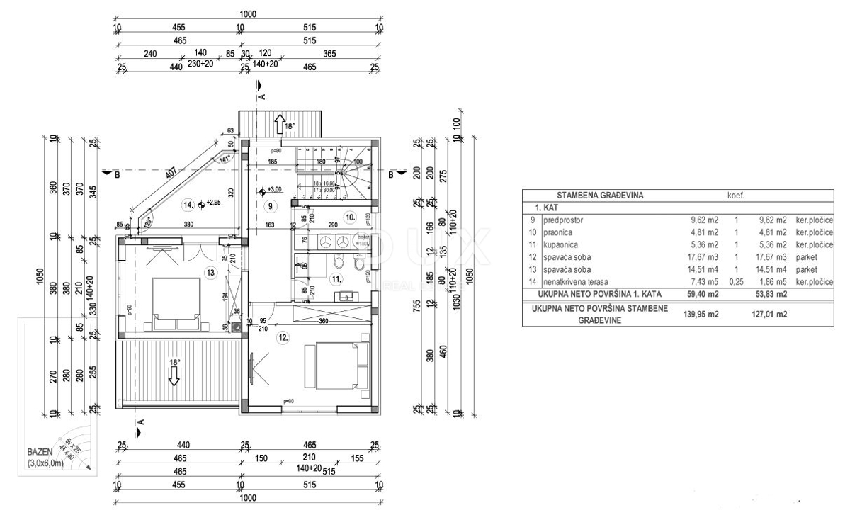
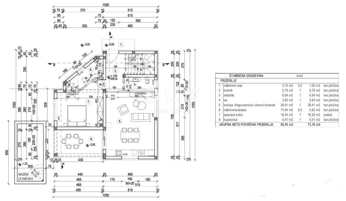
ISTRA, SVETVINČENAT – Privlačno gradbeno zemljišče s projektom moderne hiše in bazena Svetvinčenat, slikovito istrsko mestece, ki se nahaja v središču polotoka, je vse pogostejša izbira kupcev, ki iščejo mirno življenje, povezanost z naravo in tradicionalni ambient z bogato zgodovinsko dediščino. Zaradi svoje avtentičnosti, vzdrževane lokacije in položaja Svetvinčenat postaja privlačna točka za družinsko gradnjo, pa tudi za turistične naložbe. V mirni vasici v bližini Svetvinčenta se prodaja gradbeno zemljišče velikosti 305 m² z veljavnim gradbenim dovoljenjem za hišo z bazenom. Lokacija je izjemno primerna za tiste, ki si želijo miru, naravnega okolja in že pripravljene dokumentacije za gradnjo. Dostop do parcele je omogočen po vzdrževani makadamski cesti, dolgi približno 100 metrov, ki vodi do asfaltne ceste. Ob sami dostopni cesti so že položene vodovodne cevi, optični internet, električne inštalacije in strelovodna zaščita – kar pomeni, da je pomemben del pripravljalne infrastrukture že zaključen. Priključek za elektriko je že plačan, zahteva za priključek za gradbišče pa je bila oddana – kmalu se pričakuje montaža s strani HEP, kar pomeni, da se lahko gradnja začne takoj. Na parceli je zasnovana moderna dvonadstropna hiša s skupno neto površino 139,95 m², skrbno zasnovana za udobno bivanje skozi vse leto ali kot počitniška hiša. Pritličje obsega pokrit vhod, hodnik, stranišče in prostoren bivalni del, v katerem so kuhinja, jedilnica in dnevna soba povezani z dostopom do pokrite terase. V pritličju je tudi spalnica z lastno kopalnico – zelo praktična rešitev za goste ali kot glavna spalnica brez stopnic. V prvem nadstropju sta še dve spalnici, dodatna kopalnica, pralnica in pokrita terasa s pogledom na okoliško naravo. Tik ob tej parceli sta še dve gradbeni parceli z enakim statusom – obe z veljavnimi dovoljenji in projekti za podobne hiše, ki sta prav tako na voljo za nakup. To zagotavlja dodatno fleksibilnost – bodisi za širitev zasebne lastnine bodisi za razvoj več objektov kot del naložbe. Nakup je možen posamezno, kot je to v tem primeru, ali v kombinaciji z drugimi parcelami tik ob sosednji hiši – odvisno od potreb in želja bodočega lastnika. Lastnik je pravna oseba, kupec pa ob nakupu ne plača davka na nepremičnine, zaradi česar je ta ponudba še ugodnejša. Nepremičnina ponuja že izdelano dokumentacijo, funkcionalen projekt in pripravljeno infrastrukturo v okolju, ki združuje zasebnost, kakovost in istrski značaj. Idealna je za tiste, ki se želijo izogniti dolgotrajnim administrativnim postopkom in takoj začeti graditi v enem najbolj zaželenih delov notranjosti Istre. Spoštovane stranke, provizija agencije se obračunava v skladu s Splošnimi pogoji poslovanja: http://www.dux-nekretnine.hr/opci-uvjeti-poslovanja
ID: 1226019