Hiša - SVETI PETAR U ŠUMI - 185.000 EUR
Lokacija | SVETI PETAR U ŠUMI, Istrska |
Cena € | 185.000 |
Površina | 128 m2 |
Število sob | 2 |
Površina parcele | 800 m2 |
Število kopalnic | 3 |
Blizu plaže | DA |
Oddaljenost od morja | 0 m |
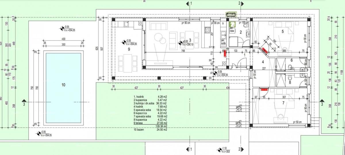
Prodajamo pritličje s bazenom, ki je trenutno v fazi roh bau. Hiša obsega: hodnik, kopalnico, kuhinjo in dnevni prostor, še en hodnik, 2 spalnici z lastnima kopalnicama ter veliko teraso velikosti 27,92 m2. Na parceli se nahaja bazen velikosti 24,50 m2. Komunalni stroški so plačani, elektrika (omara) in voda sta na parceli. Za dodatne informacije, prosimo, kontaktirajte: Azra +385 91 611 5706 +385 98 420 885 azra@almadominvest.com
ID: 1225969