Parcela - SVETI LOVREČ PAZENATIČKI - 109.000 EUR
| Lokacija | SVETI LOVREČ PAZENATIČKI, SVETI LOVREČ, Istrska |
| Cena € | 109.000 |
| Površina | 964 m2 |
| Oddaljenost od morja | 15000 m |
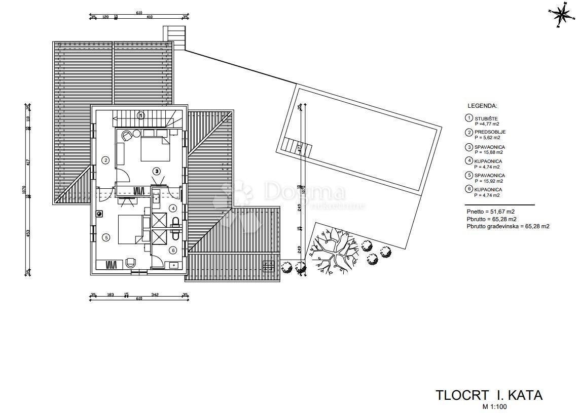
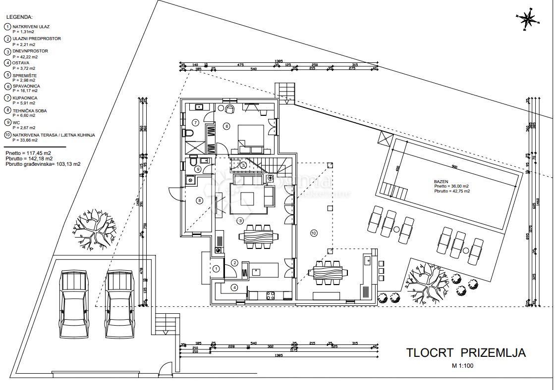
Odlično gradbeno zemljišče z gradbenim dovoljenjem v okolici Svetega Lovreča – idealno za gradnjo pristne istarske vile Prodajamo gradbeno zemljišče velikosti 964 m², ki se nahaja na izredno atraktivni in mirni lokaciji v okolici Svetega Lovreča. Zemljišče je na koncu naselja, znotraj gradbene cone, zaradi česar je zadnja razpoložljiva parcela za gradnjo na tem območju. Parcela je obdana z nedotaknjeno naravo in nudi zasebnost, mir in varnost – idealno za tiste, ki želijo pobegniti od mestnega vrveža, a hkrati biti blizu vseh pomembnih storitev. Dostop do zemljišča je urejen z novo asfaltirano cesto, kar dodatno izboljšuje udobje in dostopnost. Vse potrebne komunalne infrastrukture – elektrika in voda – so na parceli, pridobljeno pa je že gradbeno dovoljenje, kar omogoča takojšen začetek gradnje brez dodatnih zapletov. Posebna vrednost te nepremičnine je projekt priznanega arhitekta, ki predvideva gradnjo pristne istarske vile z neto površino 169 m². Vila je zasnovana z veliko pozornostjo do avtentičnosti in skladnosti z okoljem, z bazenom za uživanje v toplih poletnih dneh, prostornim dvoriščem za sprostitev in druženje ter čudovitim pogledom na morje v daljavi, ki dodatno poudarja ekskluzivnost te ponudbe. To gradbeno zemljišče je popolna izbira za tiste, ki iščejo kombinacijo naravnega okolja, miru in sodobnega udobja, pa tudi za investitorje, ki jih zanima edinstven projekt gradnje luksuzne vile v enem izmed najbolj zaželenih delov Istre. Za več informacij in dogovor o ogledu nas kontaktirajte. Izkoristite priložnost in postanite lastnik te ekskluzivne parcele ter uresničite svoje sanje o domu na Istarskem!
ID: 1245172