Hiša - SVETI LOVREČ PAZENATIČKI - 350.000 EUR
| Lokacija | SVETI LOVREČ PAZENATIČKI, SVETI LOVREČ, Istrska | 
| Cena € | 350.000 | 
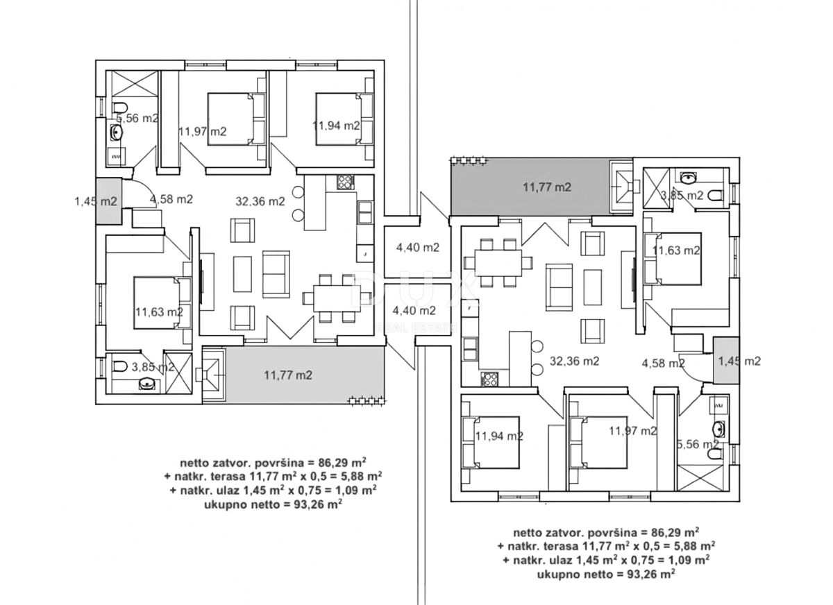
| Površina | 93 m2 | 
| Število sob | 4 | 
| Površina parcele | 500 m2 | 
| Število kopalnic | 2 | 
| Oddaljenost od morja | 15000 m | 
ISTRA, SVETI LOVREČ - Dvojček hiše z bazenom Na hribu s čudovitim razgledom na nežna polja, vinograde, oljčne nasade in morje v daljavi se nahaja Sveti Lovreč. Sveti Lovreč se nahaja sredi bujnih polj sivke na zahodnem delu istrskega polotoka, v neposrednem zaledju Vrsarja, Poreča in Rovinja, in je eno najbolje ohranjenih srednjeveških utrjenih mest v Istri. Lega mesta na nežnem hribu, ki dominira nad območjem, kjer je raztresenih kar 22 naselij, vasi in zaselkov, govori o njegovi pomembni vlogi skozi zgodovino. Ob rahlo razčlenjeni zahodni obali Istre izstopa več globokih zalivov, od katerih je Limski zaliv delno del občine Sveti Lovreč. Limski zaliv je naravni pojav velike znanstvene in estetske vrednosti; razglašen je za poseben morski rezervat. V nežni soseski v bližini Svetega Lovreča se prodaja dvojček hiše z bazenom. Mikrolokacija ponuja pristno doživetje majhnega istrskega mesteca, intimnost, oddih od vsakršnega napornega dela in oddih od hrupa, hkrati pa je dovolj blizu dinamičnim istrskim mestom z vrsto ugodnosti. Poleg priročne lokacije nepremičnino odlikuje tudi kakovost gradnje, ki zagotavlja dolgoročno zadovoljstvo in kakovost bivanja. Hiša brezčasne arhitekture se po obliki in barvi vklaplja v naselje in pokrajino ter je zasnovana kot ena stanovanjska enota, ki se razteza čez eno nadstropje. Sestavlja jo odprt prostor, ki združuje kuhinjo, jedilnico in dnevno sobo z dostopom do pokrite terase, tri spalnice, dve kopalnici in shramba. Dvorišče je ambientalno in hortikulturno urejeno in ograjeno ter vsebuje bazen s prostorom za sončenje. Odlična lokacija in prostorska organizacija notranjosti in zunanjosti te nepremičnine ponujata priložnost za udobno družinsko življenje ali naložbo v turistični oddajni posel. Navedena cena nepremičnine se nanaša na končno stopnjo dokončanja brez pohištva, kar omogoča končno dekoracijo po lastnih željah in preferencah. Spoštovane stranke, provizija agencije se obračunava v skladu s Splošnimi pogoji poslovanja: www.dux-nekretnine.hr/opci-uvjeti-poslovanja
ID: 1225282
 
         
                             
                             
                             
                             
                            