Stanovanje - SUKOŠAN - 273.000 EUR
| Lokacija | SUKOŠAN, Zadarska |
| Cena € | 273.000 |
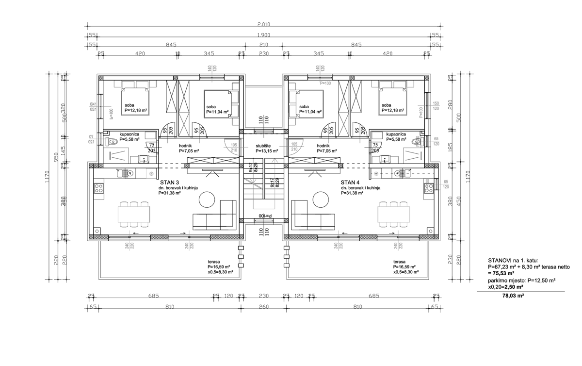
| Površina | 78 m2 |
| Število sob | 3 |
| Število kopalnic | 1 |
| Oddaljenost od morja | 0 m |
Ekskluzivna stanovanja v novogradnji na odlični lokaciji, le 200 metrov od morja, s pogledom na morje, v bližini peščenih in prodnatih plaž. Naprodaj je stanovanje v prvem nadstropju novogradnje v Sukošanu, s površino 78 m2. Nahaja se v mirnem okolju oljčnih dreves s pogledom na bližnjo plažo, oddaljeno le 200 metrov. Idealno za stalno bivanje ali sezonski oddih. Lastnosti stanovanja: - Površina: 78 m2 - Lokacija: 200 metrov od morja in plaže, v mirnem okolju oljčnega nasada - Prvo nadstropje v novogradnji - Načrtovan zaključek del: pomlad 2026. Podrobnosti o stavbi in ceni: - Stavba je trenutno v gradnji - Cena v fazi gradnje: 3.500 € / m2 - Možnost popusta ob predplačilu ali obročni odplačilu Visokokakovostna oprema in materiali: - Talno ogrevanje - Klimatske naprave v vseh prostorih - Alu-lesena okna in vrata - Vrhunska sanitarna oprema - Funkcionalna razporeditev prostorov Sukošan je kraj, ki se ponaša z odličnim prometnim položajem in naravnimi lepotami, ter velja za idealno turistično destinacijo. Ni presenetljivo, da se je turizem tukaj začel že v tridesetih letih prejšnjega stoletja, prvi turisti pa so kraj imenovali otroški raj. Ob krajevni obali se razteza kar deset kilometrov čudovite razgibane obale s kristalno čistim morjem. Tukaj lahko vsakdo najde plažo zase – urejeno z različnimi vsebinami ali pa kakšno intimno uvalo, skrito v nedotaknjeni naravi. Zaradi dolge turistične zgodovine ima kraj razvito infrastrukturo, bogato gastronomsko ponudbo ter izjemno veliko organiziranih kulturno-zabavnih vsebin, kot so ribiške zabave, programi za otroke, poletni pustni karnevali, klapske večeri ter različna športna tekmovanja. Za več informacij in ogled nas kontaktirajte na: M+385 99 658 46 92 E info@horizont-nekretnine.hr www.horizont-nekretnine.hr
ID: 1263530