Hiša - ŠTOKOVCI - 445.000 EUR
| Lokacija | ŠTOKOVCI, SVETVINČENAT, Istrska |
| Cena € | 445.000 |
| Površina | 111 m2 |
| Število sob | 4 |
| Površina parcele | 549 m2 |
| Število kopalnic | 2 |
| Oddaljenost od morja | 0 m |
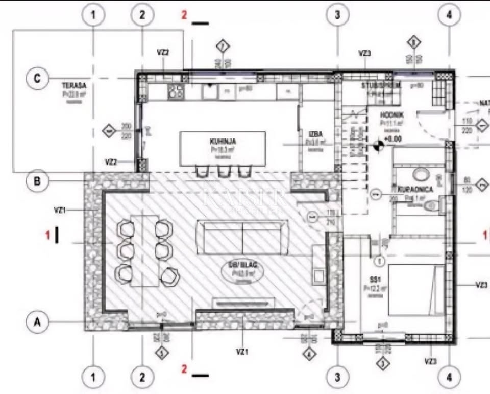
Agencija Kaiser Immobilien ponuja avtentično hišo z bazenom, ki je trenutno v gradnji, z datumom dokončanja konec leta 2025. Nahaja se v majhnem mestecu Čabrunići v bližini Svetvinčenta. Svetvinčent je mesto, ki se nahaja v južno-osrednjem delu Istre, na pol poti med Pulo in Pazinom. To renesančno mesto je eden od istrskih biserov z bogato turistično ponudbo in številnimi dogodki, ki se odvijajo v zgodovinskih predelih tega mesta. Simbol samega mesta je renesančni trg Placa z dvorcem Morosini-Grimani, ki je najpogostejši gostitelj številnih kulturnih dogodkov. Znano je tudi po čudoviti naravi, gozdovih in vinogradih. Parcela v velikosti 614 m2 je z dveh strani obdana s suhozidom, nahaja se v slepi ulici na koncu vasi, zato zagotavlja veliko miru in varnosti, da bo soseska ostala nedotaknjena. Hiša je v gradnji, njena površina je 111 m2. Hiša je zasnovana kot kombinacija sodobne trenutne gradnje in avtentičnih istrskih kamnitih hiš, z vsem udobjem in prednostmi današnjega časa. V pritličju hiše je bivalni del zasnovan kot odprt prostor: dnevna soba, jedilnica (višina stropa v dnevni sobi in jedilnici je 5 m) in kuhinja, hodnik, kopalnica in ena spalnica. V prvo nadstropje se pride po notranjem stopnišču in se nahajata 2 spalnici ter kopalnica. Predvideno je talno ogrevanje preko toplotnih črpalk in kamin v dnevni sobi, hlajenje pa je zagotovljeno s klimatskimi napravami v vseh prostorih. Zunanje stavbno pohištvo je PVC šestkomorni profil DECEUNINCK/ELEGANT, antracitne barve, troslojno steklo, okovje MACO, dvižno-drsne stene HST. Zunanja terasa s ploščicami je velika 23 m2, zunanji bazen s pripadajočo bazensko opremo je velik 28 m2, predvideni pa sta tudi dve parkirni mesti. Za hišo je izdano pravnomočno gradbeno dovoljenje, plačani so vsi komunalni prispevki in priključki. V neposredni bližini nepremičnine se nahajajo hiše domačinov in počitniške hiše, zato je hiša idealna za uživanje v ugodnostih, ki jih ponuja mirna istrska vas, ali za vlagatelje, ki lahko z oddajanjem počitniške hiše ustvarijo odličen dohodek. Plaža, morje: 15 km Letališče Pula: 20 km Rovinj: 25 km München, Dunaj: 580 km Ljubljana: 190 km Agencijska provizija za kupca znaša 3 % + DDV in se plača šele ob prodaji nepremičnine, ko je podpisan prvi pravni dokument. Za vse dodatne informacije se obrnite na: Marijano Cuculić Telefon: + 385 98 186 9950 E-pošta: marijana.cuculic@kaiser-immobilien.hr
ID: 1216733