Hiša - ŠTOKOVCI - 441.000 EUR
| Lokacija | ŠTOKOVCI, SVETVINČENAT, Istrska |
| Cena € | 441.000 |
| Površina | 111 m2 |
| Število sob | 4 |
| Površina parcele | 614 m2 |
| Število kopalnic | 2 |
| Oddaljenost od morja | 10000 m |
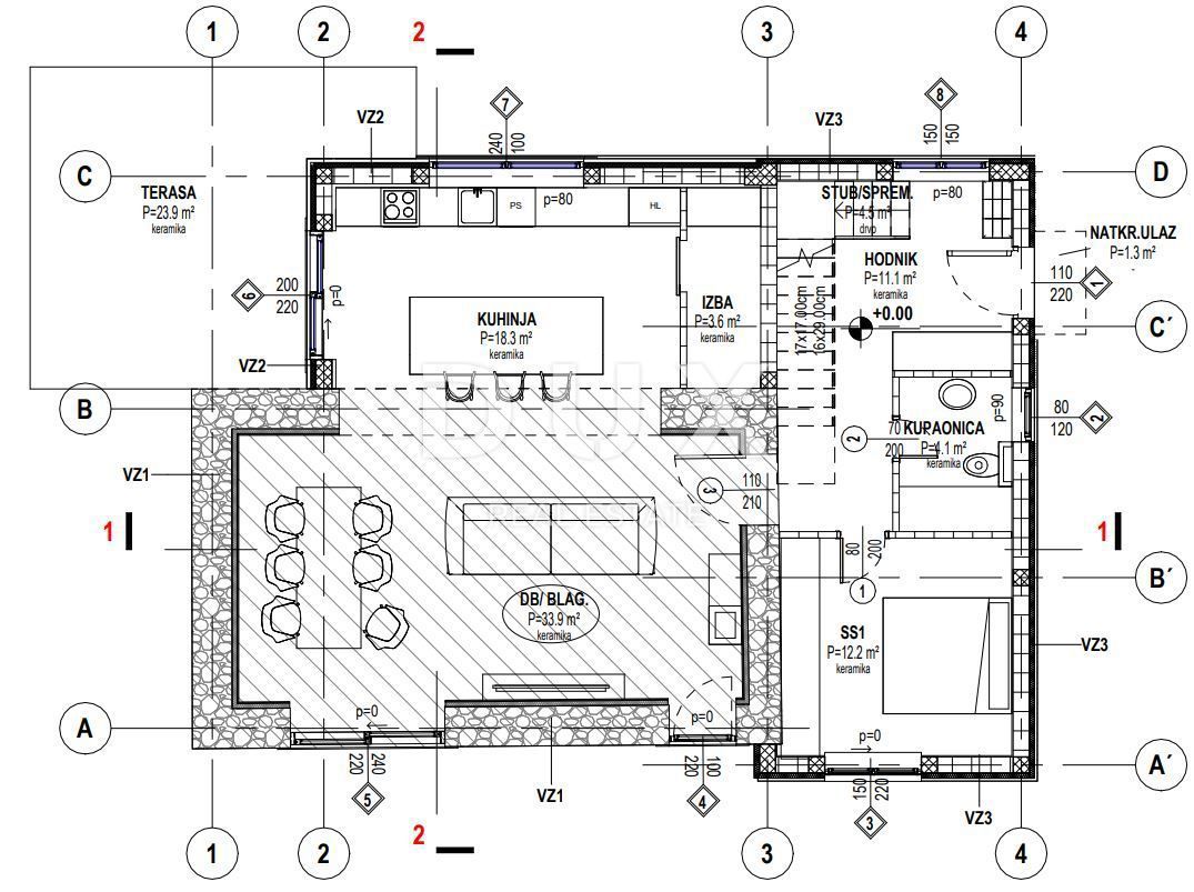
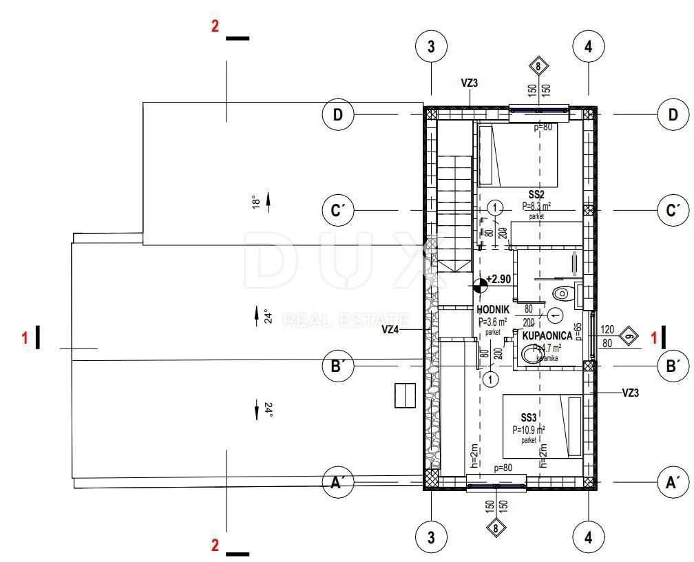
ISTRA, ŠTOKOVCI - Vila z bazenom v osrčju Istre Hiša je trenutno v gradnji - predvidena je samostojna stanovanjska stavba, pritličje in prvo nadstropje, pomožni objekti - bazen z bazensko opremo, zbirni jašek, 2 parkirni mesti. Hiša se nahaja na koncu vasi v slepi ulici, parcela je velika 614m2, hiša ima neto površino 111m2. Ima dostop z javne ceste, obdana je s suhozidom na 3 straneh. Pritličje hiše obsega naslednje prostore: dnevno sobo, jedilnico (v dnevni sobi in jedilnici je višina stropa 5m) in kuhinjo kot odprt prostor, shrambo, kopalnico, hodnik, spalnico. Do prvega nadstropja se dostopa po notranjem stopnišču, v prvem nadstropju pa sta 2 spalnici in kopalnica. Zunanja terasa s ploščicami je velika 23m2, bazen pa 28m2. V neposredni bližini zemljišča se nahajajo hiše domačinov in počitniške hiše, zato je bodoča hiša idealna za tiste, ki želijo uživati v vseh ugodnostih, ki jih ponuja mirna istrska vas, ali za investitorje, ki lahko z oddajo počitniške hiše zaslužijo odličen dohodek. Na parceli so priključki za elektriko in vodo. Za hišo je izdano veljavno gradbeno dovoljenje, plačani pa so tudi komunalni prispevki. Cena za dokončano hišo na ključ je navedena v oglasu. Možen je tudi nakup nepremičnine v nedokončani fazi, cena je odvisna od stopnje dokončanosti. Spoštovane stranke, agencijska provizija se obračunava v skladu s Splošnimi pogoji poslovanja. https://www.dux-nekretnine.hr/opci-uvjeti-poslovanja
ID: 1216215