Stanovanje - STIVAŠNICA - 293.000 EUR
| Lokacija | STIVAŠNICA, ROGOZNICA, Šibeniško-kninska |
| Cena € | 293.000 |
| Površina | 82 m2 |
| Število sob | 2 |
| Število kopalnic | 1 |
| Oddaljenost od morja | 80 m |
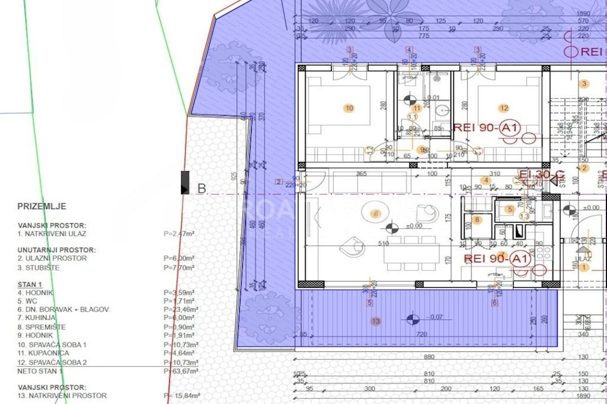
Na prodaj so apartmaji v novogradnji v čudoviti in mirni Stivašnici. Stavba se nahaja na odlični lokaciji, le 80 m od morja in 5 minut hoje od kavarn, restavracij in trgovin. Apartma S1 se nahaja v pritličju in ima notranjo površino 63,67 m2, več kot 15 m2 terase, ima pa tudi 68,50 m2 dvorišča in zunanje parkirno mesto. Vključno s pripadajočimi prostori ima nepremičnina neto površino 81,95 m2. Apartma je sestavljen iz hodnika, kopalnice, dodatnega stranišča, dveh spalnic, kuhinje in prostorne dnevne sobe z jedilnico, ki vodi na teraso z vrtom. Nepremičnina bo zgrajena po najvišjih standardih z vrhunsko opremo, mizarstvom, keramiko in sanitarijami. Energetska učinkovitost ustreza najvišjim standardom. Vselitev je predvidena konec leta 2026. Standardna poslovna politika naše nepremičninske agencije je, da organizira ogled nepremičnine, potem ko stranka podpiše našo standardno pogodbo o posredovanju. Podpis te pogodbe je osnovni pogoj, pod katerim se bodo nadaljevale nadaljnje aktivnosti v zvezi z nakupom nepremičnin, vse to pa temelji na Zakonu o nepremičninskem posredovanju in Zakonu o varstvu podatkov.
ID: 1243247