Stanovanje - SRIMA - 751.452 EUR
| Lokacija | SRIMA, VODICE, Šibeniško-kninska |
| Cena € | 751.452 |
| Površina | 192 m2 |
| Število sob | 4 |
| Število kopalnic | 3 |
| Bližina prevoza | DA |
| Oddaljenost od morja | 20 m |
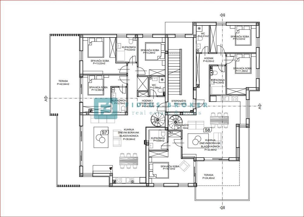
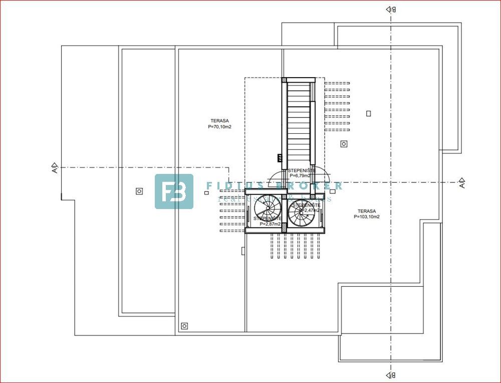
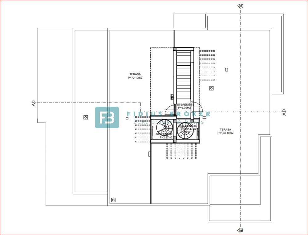
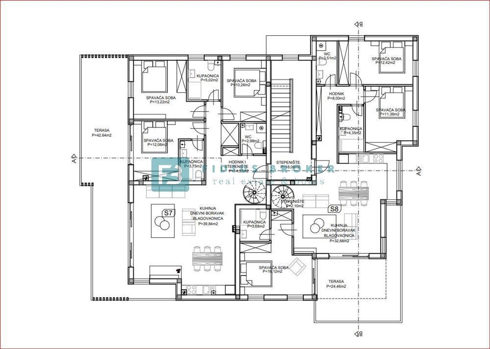
SRIMA - Moderno dvoetažno stanovanje s strešno teraso, na izjemni lokaciji, v 2. vrsti do morja! V izgradnji je stanovanjski objekt s skupno 8 stanovanji, razporejenimi v pritličju, 1. nadstropju in 2. nadstropju s strešno teraso. Objekt je zgrajen po trenutnih trendih gradnje, sodoben dizajn, z uporabo kvalitetnih materialov. Vsi prostori bodo klimatizirani (ogrevanje/hlajenje), kopalnice z električnim talnim gretjem, protivlomna vrata, kvalitetno mizarstvo in keramika. Vseljivo 2023. Lepa, prodnata plaža je v neposredni bližini objekta. SRIMA - Prodamo novo dvonadstropno luksuzno stanovanje v 2. nadstropju s strešno teraso na izjemni lokaciji, v 2. vrsti do morja, tik ob plaži! Stanovanjski objekt s skupno 8 luksuznimi apartmaji s pogledom na morje. Objekt ima 3 etaže: pritličje, 1. nadstropje in 2. nadstropje s strešno teraso. Zgrajena je po trenutnih trendih gradnje, modernega dizajna, z uporabo kvalitetnih materialov. Vse sobe so klimatizirane (ogrevanje/hlajenje), kopalnice z električnim talnim gretjem, protivlomna vrata, kvalitetno mizarstvo in keramika. Vseljivo. Lepa, prodnata plaža se nahaja neposredno pred objektom, center pa je od objekta oddaljen 600 m. Stanovanje S7 se nahaja v 2. nadstropju objekta, orientirano na južno stran in ima uporabno površino 192,68 m2 (bruto 264,51 m2). Sestoji iz treh spalnic, hodnika, dveh kopalnic, wc-ja, dnevne sobe, jedilnice, kuhinje, terase 42,64 m2, stopnišča, ki vodi na strešno teraso 105 m2 z odprtim pogledom na morje in otoki. Stanovanju pripada 1 parkirno mesto. Cena: 751.452 € (DDV je vključen v ceno - kupec ne plača 3% davka na promet nepremičnin) DRUGO NA VOLJO V OBJEKTU PRITLIČJE: • STANOVANJE S2 -PRODANO • STANOVANJE S3 – PRODANO 1. NADSTROPJE • STANOVANJE S6 – PRODANO 2. NADSTROPJE, 3. NADSTROPJE • STANOVANJE S8 – nahaja se v 2. nadstropju stavbe, orientirano na vzhodno stran, ima uporabno površino 170,34 m2 (bruto 236,75 m2). Sestoji iz treh spalnic, hodnika, dveh kopalnic, wc-ja, dnevne sobe, jedilnice, kuhinje, terase 24,46 m2, stopnišča, ki vodi na strešno teraso 103,10 m2 z odprtim pogledom na morje in otoki. Stanovanju pripada 1 parkirno mesto. Cena: 680.000 € (DDV je vključen v ceno - kupec ne plača 3% davka na promet nepremičnin) Agencijska provizija je 2%. Za ostale informacije nas kontaktirajte preko elektronske pošte ali telefona.
ID: 1248454