Stanovanje - SRIMA - 400.000 EUR
| Lokacija | SRIMA, VODICE, Šibeniško-kninska |
| Cena € | 400.000 |
| Površina | 127 m2 |
| Število sob | 4 |
| Število kopalnic | 2 |
| Blizu plaže | DA |
| Oddaljenost od morja | 0 m |
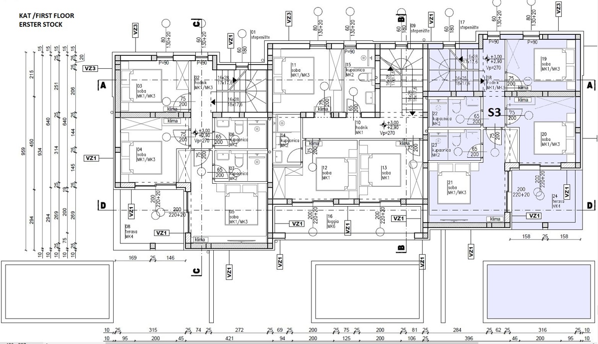
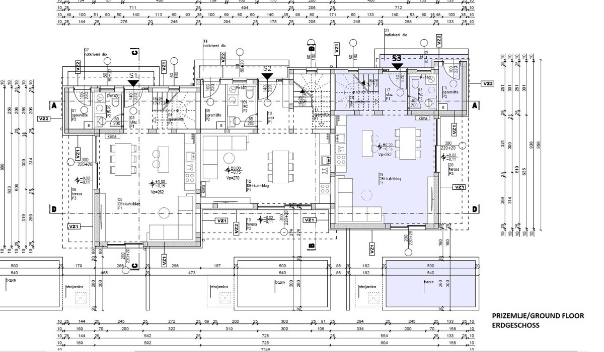
Vodice, SRIMA - prodajajo se stanovanja v novogradnji v bližini plaže. Projekt sodobnega videza ima tri etaže: pritličje + nadstropje + strešna terasa in obsega tri stanovanjske enote. Vsaki enoti pripada manjši del vrta in dve parkirni mesti. Projekt se trenutno gradi s kakovostnimi materiali in bo opremljen po najnovejših gradbenih standardih. Predvideni rok zaključka gradnje je poletje 2026. =S3 STANOVANJE ima skupno neto uporabno površino stanovanjske površine 127,43 m2 in obsega tri etaže: pritličje + nadstropje + drugo nadstropje. Pritličje neto uporabne površine 53,13 m2 obsega vhod, shramba, WC, shramba pod stopnicami, kuhinjo z jedilnico in dnevno sobo z izhodom na pokrito teraso. Z notranjimi stopnicami se pride v nadstropje hiše z neto uporabno stanovanjsko površino 52,36 m2, ki obsega stopnišče, hodnik, dve spalnici, kopalnico in glavno spalnico z lastno kopalnico ter odprto teraso. Drugo nadstropje s skupno neto uporabno stanovanjsko površino 21,94 m2 obsega stopnišče s podestom, pokriti del strešne terase in odprti del strešne terase površine 46,26 m2. Objekt se nahaja na mirni lokaciji v okolju novih družinskih vil, približno 300 m od plaže in 800 m od centra. Ostalo na voljo: =S1 STANOVANJE ima skupno neto uporabno površino stanovanjske površine 126,53 m2 in obsega tri etaže: pritličje + nadstropje + drugo nadstropje. Pritličje neto uporabne površine 52,50 m2 obsega vhod, shramba, WC, shramba pod stopnicami, kuhinjo z jedilnico in dnevno sobo z izhodom na pokrito teraso površine 13,28 m2. Z notranjimi stopnicami se pride v nadstropje hiše z neto uporabno stanovanjsko površino 52,06 m2, ki obsega stopnišče, hodnik, dve spalnici, kopalnico in glavno spalnico z lastno kopalnico ter odprto teraso površine 7,90 m2. Drugo nadstropje s skupno neto uporabno stanovanjsko površino 21,97 m2 obsega stopnišče s podestom, pokriti del strešne terase površine 5,29 m2 in odprti del strešne terase površine 46,21 m2. =S2 STANOVANJE ima skupno neto uporabno površino stanovanjske površine 139,02 m2 in obsega tri etaže: pritličje + nadstropje + drugo nadstropje. Pritličje neto uporabne površine 53,44 m2 obsega vhod, shramba, WC, shramba pod stopnicami, kuhinjo z jedilnico in dnevno sobo z izhodom na pokrito teraso. Z notranjimi stopnicami se pride v nadstropje hiše z neto uporabno stanovanjsko površino 56,12 m2, ki obsega stopnišče, hodnik, dve spalnici, kopalnico in glavno spalnico z lastno kopalnico ter odprto teraso. Drugo nadstropje s skupno neto uporabno stanovanjsko površino 29,46 m2 obsega stopnišče s podestom, pokriti del strešne terase in odprti del strešne terase površine 49,25 m2.
ID: 1247376