Stanovanje - SRIMA - 400.000 EUR
| Lokacija | SRIMA, VODICE, Šibeniško-kninska |
| Cena € | 400.000 |
| Površina | 139 m2 |
| Število sob | 4 |
| Število kopalnic | 2 |
| Blizu plaže | DA |
| Oddaljenost od morja | 0 m |
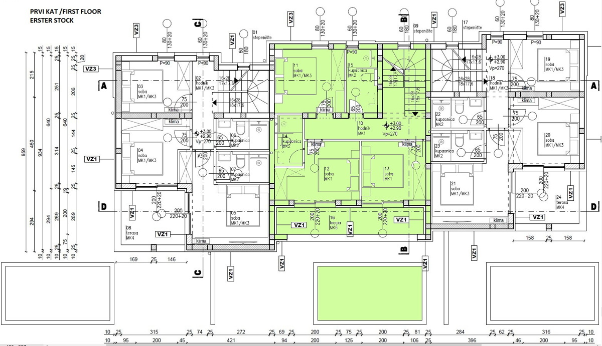
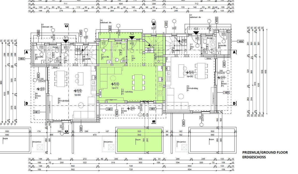
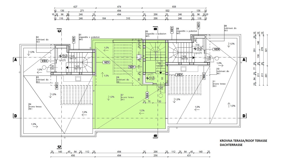
Vodice, SRIMA - prodajajo se stanovanja v novogradnji v bližini plaže. Projekt sodobnega videza ima tri etaže: pritličje + nadstropje + strešna terasa in obsega tri stanovanjske enote. Vsaki enoti pripada manjši del vrta in dve parkirni mesti. Projekt se trenutno gradi iz kakovostnih materialov in bo opremljen po najnovejših gradbenih standardih. Načrtovani rok zaključka gradnje je poletje 2026. =S2 STANOVANJE ima skupno neto uporabno površino bivalnega prostora 139,02 m2 in obsega tri etaže: pritličje + nadstropje + II. nadstropje. Pritličje z neto uporabno površino 53,44 m2 zajema vhod, shramba, WC, shramba pod stopnicami, kuhinjo z jedilnico in dnevno sobo z izhodom na pokrito teraso. Z notranjimi stopnicami se pride v nadstropje stanovanja z neto uporabno površino 56,12 m2, ki obsega stopnišče, hodnik, dve spalnici, kopalnico in glavno spalnico z lastno kopalnico ter odprto teraso. II. nadstropje s skupno neto uporabno površino bivalnega prostora 29,46 m2 zajema stopnišče s podestom, pokriti del strešne terase in odprti del strešne terase s površino 49,25 m2. Objekt se nahaja na mirni lokaciji v okolici novih družinskih vil, približno 300 m od plaže in 800 m od centra. OSTALO NA VOLJO: =S1 STANOVANJE ima skupno neto uporabno površino bivalnega prostora 126,53 m2 in obsega tri etaže: pritličje + nadstropje + II. nadstropje. Pritličje z neto uporabno površino 52,50 m2 zajema vhod, shramba, WC, shramba pod stopnicami, kuhinjo z jedilnico in dnevno sobo z izhodom na pokrito teraso s površino 13,28 m2. Z notranjimi stopnicami se pride v nadstropje stanovanja z neto uporabno površino 52,06 m2, ki obsega stopnišče, hodnik, dve spalnici, kopalnico in glavno spalnico z lastno kopalnico ter odprto teraso s površino 7,90 m2. II. nadstropje s skupno neto uporabno površino bivalnega prostora 21,97 m2 zajema stopnišče s podestom, pokriti del strešne terase s površino 5,29 m2 in odprti del strešne terase s površino 46,21 m2. =S3 STANOVANJE ima skupno neto uporabno površino bivalnega prostora 127,43 m2 in obsega tri etaže: pritličje + nadstropje + II. nadstropje. Pritličje z neto uporabno površino 53,13 m2 zajema vhod, shramba, WC, shramba pod stopnicami, kuhinjo z jedilnico in dnevno sobo z izhodom na pokrito teraso. Z notranjimi stopnicami se pride v nadstropje stanovanja z neto uporabno površino 52,36 m2, ki obsega stopnišče, hodnik, dve spalnici, kopalnico in glavno spalnico z lastno kopalnico ter odprto teraso. II. nadstropje s skupno neto uporabno površino bivalnega prostora 21,94 m2 zajema stopnišče s podestom, pokriti del strešne terase in odprti del strešne terase s površino 46,26 m2.
ID: 1247375