Poslovni prostor - SRIMA - 779.000 EUR
| Lokacija | SRIMA, VODICE, Šibeniško-kninska |
| Cena € | 779.000 |
| Površina | 194 m2 |
| Število sob | 6 |
| Število kopalnic | 6 |
| Oddaljenost od morja | 15 m |
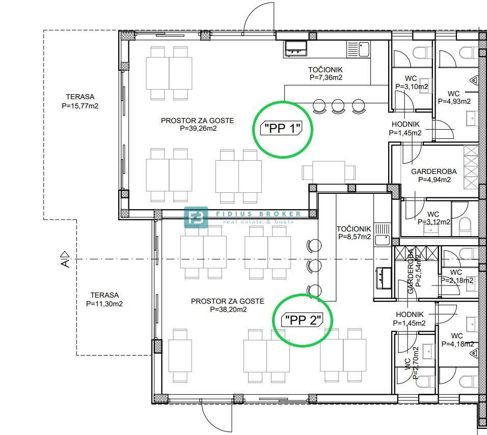
SRIMA - Prodamo dva atraktivna poslovna prostora, na odlični lokaciji v Srimi, ob glavni promenadi in plaži, 1. vrsta do morja! Nahajajo se v pritličju stanovanjsko poslovnega objekta, s skupno uporabno površino 196,44 m2, teraso s čudovitim razgledom in dvema parkirnima mestoma. Prostori so dvoetažni, po potrebi se lahko preuredijo v večji poslovni prostor. Poslovni prostor PP1 obsega odprti prostor, garderobo, WC za osebje, hodnik, WC za žene, WC za moške. PP2 obsega odprti prostor, garderobo, WC za osebje, hodnik, WC za ženske, WC za moške. Prostori so polni svetlobe in imajo čudovit sproščujoč pogled na morje in arhipelag. So popolnoma okrašeni. Zaradi idealne lege in dostopnosti so primerne za gostinske lokale vseh vrst. Cena je 779.000€ (DDV je vključen - kupec je oproščen plačila 3% davka na promet z nepremičninami). Za več informacij nas kontaktirajte preko elektronske pošte ali telefona.
ID: 1245027