Stanovanje - SPLIT - 500.000 EUR
| Lokacija | SPLIT, Splitsko-dalmatinska | 
| Cena € | 500.000 | 
| Površina | 98 m2 | 
| Število sob | 3 | 
| Število kopalnic | 1 | 
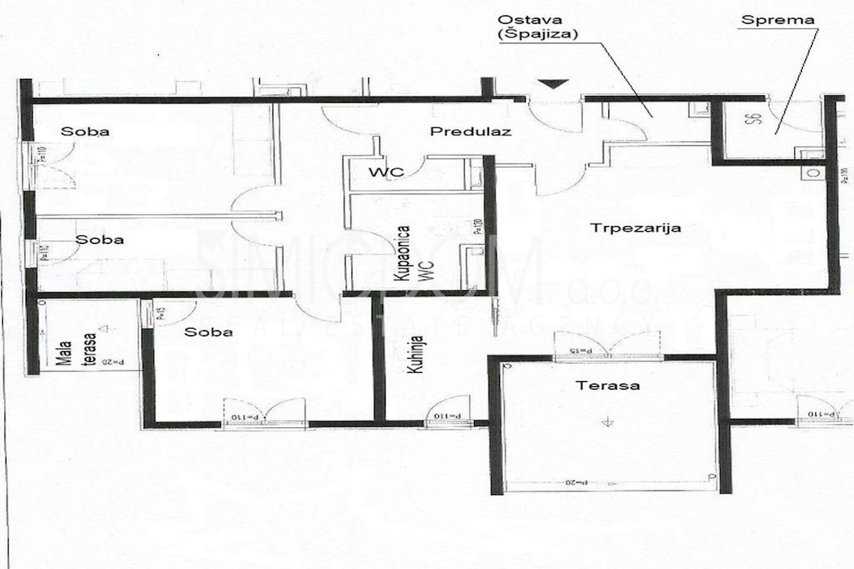
Prodajamo trisobno stanovanje na odlični lokaciji v bližini centra Splita. Gre za prostorno stanovanje, ki se nahaja v četrtem nadstropju stavbe z dvigalom. Stanovanje ima bivalno površino 97,50 m2. Sestavljeno je iz hodnika, kopalnice, dodatnega stranišča, utilityja, dnevne sobe, kuhinje, treh spalnic in dveh lož. Stanovanju pripada tudi shramba velikosti 2,4 m2, ki se nahaja tik ob stanovanju. Obstaja možnost nakupa enega parkirnega mesta velikosti 26,78 m2 v garaži. Stanovanje se nahaja v zelo iskanem delu mesta, v neposredni bližini vseh pomembnih ugodnosti, kot so trgovine, šole, vrtci in javni prevoz, ter le nekaj minut hoje od centra Splita. Lastništvo je urejeno. Standardna poslovna politika naše nepremičninske agencije je, da organizira ogled nepremičnine po tem, ko stranka podpiše našo standardno pogodbo o posredovanju. Podpis te pogodbe je osnovni pogoj, pod katerim se bodo nadaljevale nadaljnje aktivnosti v zvezi z nakupom nepremičnin, vse to pa temelji na Zakonu o nepremičninskem posredovanju in Zakonu o varstvu podatkov.
ID: 1229023