Parcela - ŠIŠAN - 135.000 EUR
| Lokacija | ŠIŠAN, LIŽNJAN, Istrska |
| Cena € | 135.000 |
| Površina | 825 m2 |
| Bližina prevoza | DA |
| Oddaljenost od morja | 0 m |
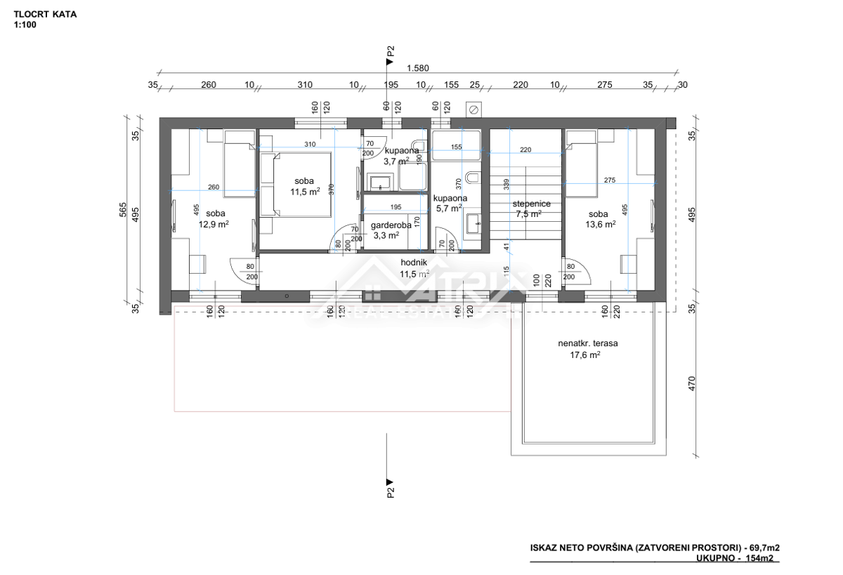
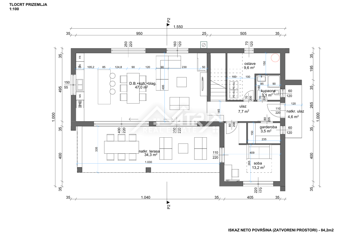
V mirnem in urejenem delu Šišana, približno 2 km od morja in neokrnjenih naravnih plaž, je na voljo zazidljivo zemljišče velikosti 825 m² pravilne, pravokotne oblike – idealno za družinsko hišo, počitniško hišo ali vilo z bazenom. Velika prednost je, da je glavni projekt že v izdelavi in vključuje sodobno dvonadstropno hišo z bazenom, kar novemu lastniku omogoča odlično izhodišče za hitrejšo realizacijo gradnje. Po projektu je predvidena hiša v dveh etažah z bazenom. Pritličje je zasnovano v “open space” konceptu s kuhinjo, jedilnico in dnevno sobo, dodatno pa še shramba, kopalnica ter ena spalnica z ločeno garderobo. Neto površina pritličja znaša 84 m², dodano vrednost pa predstavlja pokrita terasa velikosti 34 m², ki povezuje notranje prostore z vrtom in območjem bazena. V nadstropju so načrtovane tri spalnice, dve kopalnici in ločena garderoba, neto površina 70 m², ter nepokrita terasa 17,6 m² za sprostitev in zasebnost. Na parceli sta predvideni tudi dve parkirni mesti. Elektrika in voda sta v neposredni bližini, dostop do parcele je urejen. Lokacija nudi mir in zasebnost ter hkrati odlično povezavo s Pulo in Medulinom, zato je nepremičnina zanimiva tako za bivanje kot za turistično investicijo. Če iščete zazidljivo zemljišče v okolici Pule s projektom za hišo z bazenom, je ta parcela v Šišanu redka in zelo praktična priložnost.
ID: 1268102