Stanovanje - ŠILO - 285.000 EUR
| Lokacija | ŠILO, KRK, Primorsko-goranska |
| Cena € | 285.000 |
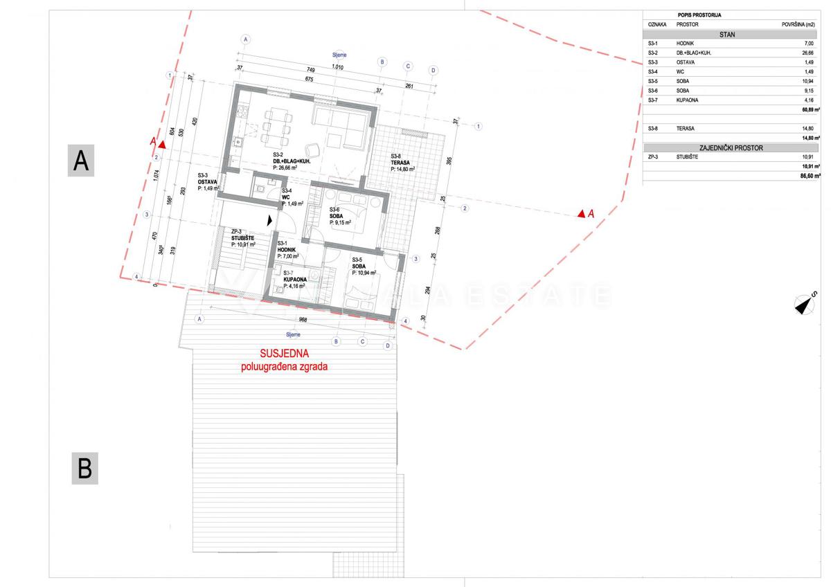
| Površina | 75 m2 |
| Število sob | 3 |
| Število kopalnic | 2 |
| Bližina prevoza | DA |
| Oddaljenost od morja | 250 m |
Nepremičnine Otok Krk, Šilo - na prodajo je apartma z odlično razporeditvijo v prvem nadstropju novogradnje na odlični lokaciji, le 450 m od čudovitih plaž in centra z vsemi potrebnimi ugodnostmi. Apartma ima bivalno površino 75.69 m2 in je sestavljen iz predsobe, dveh spalnic, kopalnice, kuhinje, jedilnice in dnevne sobe z dostopom do pokrite terase s čudovitim pogledom na morje. Pripada mu eno parkirno mesto na dvorišču stavbe. Za gradnjo se uporabljajo kakovostni materiali in oprema, vključno s keramičnimi talnimi oblogami, kakovostno sanitarno opremo, talnim ogrevanjem, klimatsko napravo in visokokakovostnim PVC zunanjim mizarstvom. Nepremičnina je trenutno v gradnji, predvideni zaključek pa je predviden do konca leta 2027. Apartma je predmet DDV in kupec ne plača davka na nepremičnine. Agencija Vala Estate Malinska vam bo omogočila varen in transparenten prenos lastništva ter zagotovila vso potrebno dokumentacijo.
ID: 1263788