Hiša - ŠILO - 1.499.000 EUR
| Lokacija | ŠILO, KRK, Primorsko-goranska |
| Cena € | 1.499.000 |
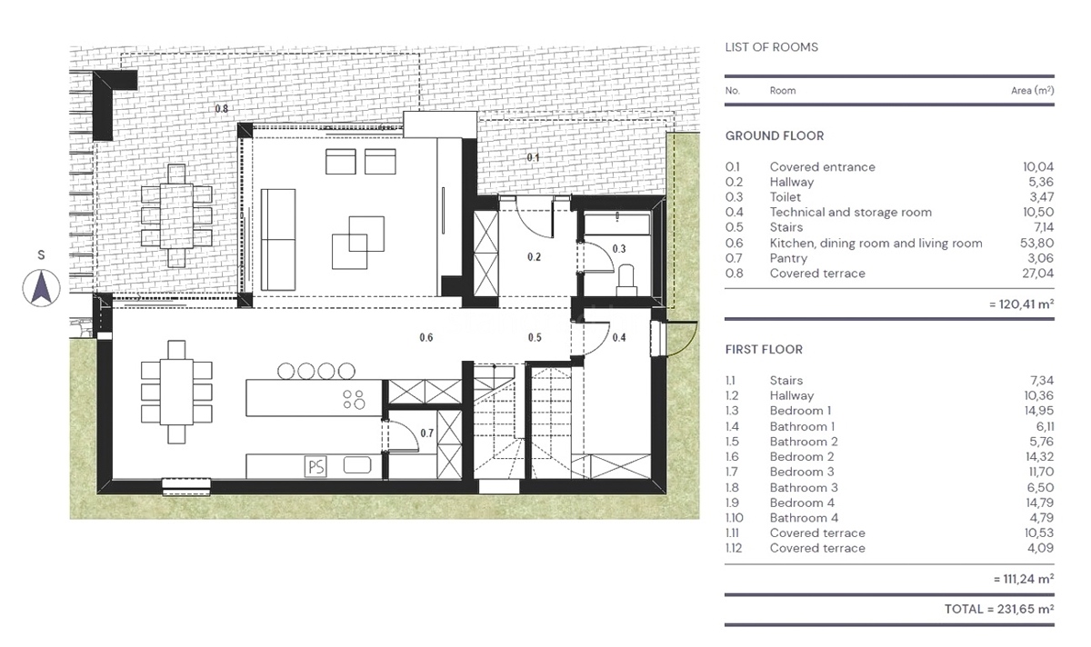
| Površina | 232 m2 |
| Število sob | 5 |
| Površina parcele | 570 m2 |
| Število kopalnic | 5 |
| Bližina prevoza | DA |
| Oddaljenost od morja | 200 m |
V prodajo preko naše agencije na Kvarnerju je vključena izjemno vredna in kakovostno grajena počitniška hiša, ki se nahaja na znanem in privlačnem jadranskem turističnem območju, na otoku Krku, v kraju Šilo. Ta elegantna nepremičnina predstavlja odlično izbiro za turistično oddajanje, luksuzne počitnice ali prijetno celoletno bivanje na jadranski obali. Hiša se razprostira v dveh etažah s skupno bivalno površino 232 m² in je bila zasnovana ter izvedena po visokih standardih udobja, kakovosti in sodobnega bivanja. Notranjost nepremičnine obsega prostorno odprto dnevno sobo, povezano s kuhinjo in jedilnico, štiri udobne spalnice, štiri sodobno urejene kopalnice, dodaten WC, teraso ter dva balkona. Razporeditev prostorov je bila skrbno načrtovana z namenom doseganja maksimalne funkcionalnosti in prijetnega občutka prostornosti ter zračnosti. Posebna vrednost te nepremičnine se odraža v njenem premium standardu izvedbe, saj je bila projektirana in realizirana v skladu s standardi petzvezdičnih vil. Hiša se prodaja popolnoma opremljena z dizajnerskim pohištvom, obenem pa vključuje tudi vse potrebne aparate ter celoten inventar, vključno s posteljnino, brisačami, posodo in priborom, kar bodočemu lastniku omogoča takojšnjo vselitev ali nadaljevanje turističnega oddajanja brez dodatnih vlaganj. Za celoletno udobje sta dodatno vgrajena tudi talno ogrevanje in sodoben sistem HVAC. Okolica te luksuzne hiše je bila skrbno urejena in zasnovana kot zasebna oaza za počitek in uživanje. V središču zunanjega prostora se nahaja bazen s sončno teraso, ob njem pa tudi prostor, namenjen žaru in sprostitvi na prostem. Poseben čar celotnemu ambientu daje impresivna hortikulturna ureditev, ki vključuje kar 24 oljk, starih približno 150 let, več kot 700 skrbno izbranih rastlin ter profesionalno urejene mediteranske vrtove. Na parceli so zagotovljena tudi parkirna mesta za dve vozili. Poleg vrhunske lokacije in privlačnega zunanjega prostora to nepremičnino dodatno odlikuje tudi zelo lep odprt pogled na morje, ki popolno dopolnjuje mediteranski značaj celotnega posestva. Velika pozornost je bila namenjena tudi sami kakovosti gradnje, pri čemer so bili uporabljeni vrhunski materiali in oprema. Gradnjo so izvedli izkušeni strokovnjaki ob stalnem strokovnem nadzoru, pri vseh fazah izvedbe pa je bila posebna pozornost usmerjena v detajle, zaključne obdelave in dolgoročno kakovost. Nepremičnina je v sistemu DDV, lastnik pa jamči urejeno lastniško dokumentacijo in možnost hitrega prenosa lastništva na kupca. Agencija STAN GRAD Immobilien nudi celovito podporo skozi celoten postopek nakupa. Poleg profesionalnega ogleda in predstavitve nepremičnine ter preverjanja njenega pravnega statusa je naša strokovna in prijazna ekipa kupcu na voljo tudi pri prenosu lastninskih pravic ter pri prepisu komunalnih priključkov in stroškov na njegovo ime.
ID: 1277217