Hiša - ŠILO Vprašaj za ceno
| Lokacija | ŠILO, KRK, Primorsko-goranska |
| Cena € | Cena na upit |
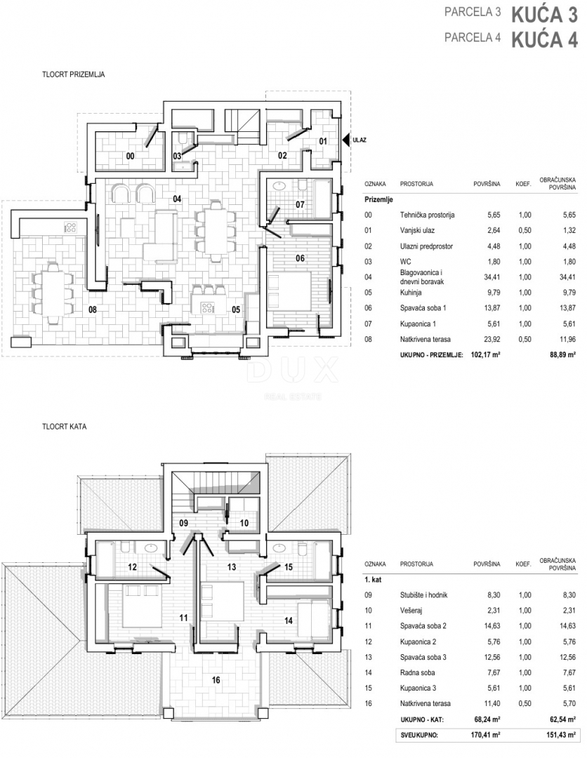
| Površina | 170 m2 |
| Število sob | 4 |
| Površina parcele | 415 m2 |
| Število kopalnic | 4 |
| Oddaljenost od morja | 1000 m |
OTOK KRK, DOBRINJ - Samostojna, mediteranska vila z zasebnim bazenom Predstavljamo vam ekskluzivno priložnost na otoku Krku! Sodobna samostojna vila se nahaja v mirni vasici v bližini Šila, znotraj luksuznega kompleksa šestih vil. Namenjena je kupcem, ki iščejo popolno kombinacijo mediteranske tradicije, sodobnega dizajna in popolne zasebnosti. Vila je zasnovana kot moderna dvonadstropna hiša z maksimalno izkoriščenim prostorom, obrnjena proti jugu, polna naravne svetlobe zaradi velikih steklenih sten. Razporeditev prostorov je funkcionalno zasnovana in obsega površino 170,41 m2: - vhodni del: pokrit zunanji vhod, predsoba, spalnica s kopalnico, stranišče za goste - bivalni del: prostorna dnevna soba z jedilnico in kuhinjo ter dostopom do pokrite terase - spalni del v prvem nadstropju: dve spalnici, vsaka s svojo kopalnico "en-suite" in dostopom do pokrite terase, pralnica; ena soba ima dodatno sobo, ki se lahko uporablja kot delovna soba ali garderoba - dodatna zunanja shramba/tehnični prostor Vrt. 415 m2. Urejena je v pristnem mediteranskem slogu s kamnitimi detajli in skrbno načrtovano razsvetljavo. Osrednje mesto zaseda zasebni bazen velikosti 24 m2, idealen za poletno osvežitev. Poleg žara in urejenih zelenih površin vila ponuja tudi tri zasebna parkirna mesta. Kamen in les prevladujeta v zunanjosti, kar zagotavlja naravno izolacijo in avtohtoni čar. Masivni leseni tramovi na terasah ustvarjajo naravno senco in prepoznavno mediteransko vzdušje. Vrhunski standard opreme. - ogrevanje in hlajenje: talno ogrevanje po celotni hiši, klimatska naprava v vseh prostorih. - varnost: alarmni sistem, video nadzor in varnostna vrata. - materiali: visokokakovostno PVC stavbno pohištvo, vrhunska keramika in sanitarna oprema priznanih proizvajalcev. Vila se prodaja na ključ (načrtovano dokončanje leta 2027). Prednosti lokacije in naložbe. Vila, ki se nahaja 2700 metrov od morja, ponuja mir brez turističnega hrupa, hkrati pa je odlična priložnost za naložbo v turistični najem. Ker je DDV vključen v ceno, je kupec oproščen plačila davka na nepremičnine. Arhitektura, ki predstavlja tradicionalno gradnjo v sodobni preobleki. Brez kompromisov med tradicijo in sodobnim razkošjem. Le korak ste oddaljeni od svojega novega doma, kjer je bila vsaka podrobnost skrbno izbrana, da vam zagotovi najboljše vzdušje in bivanje v tej edinstveni zgodbi. Zaupno nas kontaktirajte in se dogovorite za svoj zasebni sestanek. *** Spoštovane stranke, provizija agencije se obračunava v skladu s Splošnimi pogoji poslovanja: www.dux-nekretnine.hr/opci-uvjeti-poslovanja
ID: 1275146