Stanovanje - ROVINJ - 572.250 EUR
| Lokacija | ROVINJ, Istrska |
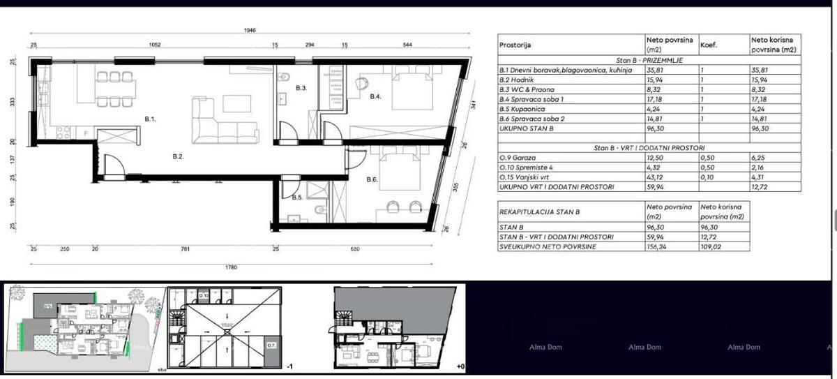
| Cena € | 572.250 |
| Površina | 109 m2 |
| Število sob | 2 |
| Število kopalnic | 1 |
| Blizu plaže | DA |
| Oddaljenost od morja | 0 m |
Stanovanje B je trisobno stanovanje z jugovzhodno usmerjenostjo, ki ponuja udobje in funkcionalnost, idealno za uživanje v čudovitem pogledu na morje Razporeditev stanovanja WC in pralnica Kopalnica Garderoba in hodnik Dnevna soba z jedilnico in ložo Kuhinja Dve spalnici z dodatno ložo Oprema: video domofon, talno gretje, toplotna črpalka, 4 klimatske naprave, stavbno pohištvo SHÜCO z zvočno izolacijo. Stanovanje bo v celoti opremljeno in opremljeno. Dodatne vsebine Dodeljeno parkirno mesto Shramba v garaži Neto uporabna površina 94.47 m² Skupna obračunska površina 102.72 m² Za več informacij kontaktirajte Azra +385 91 611 5706 +385 98 420 885 azra@almadominvest.com
ID: 1259780