Stanovanje - ROVINJ - 259.375 EUR
| Lokacija | ROVINJ, Istrska |
| Cena € | 259.375 |
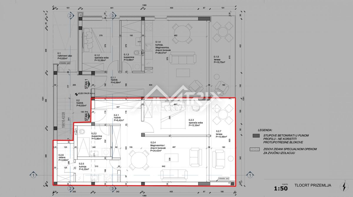
| Površina | 66 m2 |
| Število sob | 2 |
| Število kopalnic | 1 |
| Bližina prevoza | DA |
| Oddaljenost od morja | 0 m |
PREDPRODAJA - BOLJŠE CENE! dvorišče in parkirišče Apartma se nahaja v pritličju in ima del vrta pred teraso, kot nalašč za uživanje v naravi. Stanovanju pripada tudi varovano parkirno mesto. Na nepremičnini so predvidene tri polnilnice za električna vozila, ki bodočim lastnikom ponujajo praktično in okolju prijazno rešitev za polnjenje avtomobilov. Visokokakovostna oprema in materiali Za ogrevanje in hlajenje skrbi sistem MultiSplit, v kopalnici in kuhinji pa je vgrajeno talno gretje. Tla v celotnem stanovanju so italijanske ploščice, razen v spalnici, kjer je parket. Velike steklene portale sestavljajo beli PVC elementi stavbnega pohištva z zunanjo aluminijasto oblogo antracitne barve. Troslojna zasteklitev in aluminijasta polkna z električnim dvigalom dodatno izboljšajo kakovost bivanja, balkonska vrata pa so dvižno-drsna. Spuščen del stropa ob steklenem portalu skriva karniso, ki prispeva k elegantnemu videzu prostora. Kvalitetna gradnja in moderen stil fasade Fasada objekta je sestavljena iz sistema demitasse debeline 10 cm z elementi dekorativnega kamna po prikazanih vizualizacijah. Dodatne ugodnosti Inverterski bojler razreda A zagotavlja higienično pripravo sanitarne vode v kopalnici in kuhinji. Okovje je HansGrohe ali Grohe in zagotavlja najvišjo kakovost in sodoben dizajn. Sanitarije obsegajo vgradni splakovalnik, WC in umivalnik Grohe, Geberit ali enakovredne kakovosti. Hodnik objekta je tlakovan z granitnim kamnom, ograja pa je izdelana iz lesenih držal, kar daje prostoru posebno razkošen videz. Odlična lokacija Stanovanje se nahaja na mirni lokaciji z odlično infrastrukturo in vsemi potrebnimi vsebinami v bližini. Razdalje do pomembnih objektov so naslednje: Šola – 1,7 km supermarket – 2,4 km Vrtec – 1,7 km Javni prevoz – 150 m Restavracija – 100 m Zaradi odličnih prometnih povezav lahko hitro pridete do avtoceste in Rovinja.
ID: 1255767