Hiša - ROVINJ - 265.000 EUR
| Lokacija | ROVINJ, Istrska |
| Cena € | 265.000 |
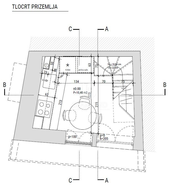
| Površina | 51 m2 |
| Število sob | 4 |
| Število kopalnic | 1 |
| Oddaljenost od morja | 0 m |
Istra, Rovinj – Staro mestno jedro V samem središču starega mestnega jedra Rovinja, med kamnitimi uličicami, ki pripovedujejo zgodbe preteklosti in dihajo mediteranski šarm, se nahaja ta pristna kamnita hiša – redka priložnost za ustvarjanje lastnega kotička v enem najbolj zaželenih delov Jadrana. Hiša se razteza skozi štiri etaže – pritličje, dve nadstropji in mansardo – s skupno neto bivalno površino 51 m². Notranjost potrebuje popolno obnovo, vendar projekt že obstaja in predvideva rekonstrukcijo brez posegov v konstrukcijo, z obnovo inštalacij, tal, stropov in sten. Tako lahko novi lastnik ohrani avtentičen značaj rovinjske arhitekture, hkrati pa ji doda sodoben pridih. V pritličju so predvideni kuhinja, jedilnica in manjša kopalnica, v zgornjih nadstropjih pa bivalni in spalni prostori. Hiša je že priključena na električno omrežje, javni vodovod in kanalizacijo, kar olajša prihodnjo prenovo. Hiša, ki združuje pristnost, zgodovinski čar in mirno lokacijo, je popolna izbira za tiste, ki si želijo dom, počitniško hišo ali investicijo z velikim potencialom v samem srcu Rovinja.
ID: 1222579