Parcela - RISIKA - 270.000 EUR
| Lokacija | RISIKA, KRK, Primorsko-goranska |
| Cena € | 270.000 |
| Površina | 1100 m2 |
| Oddaljenost od morja | 1000 m |
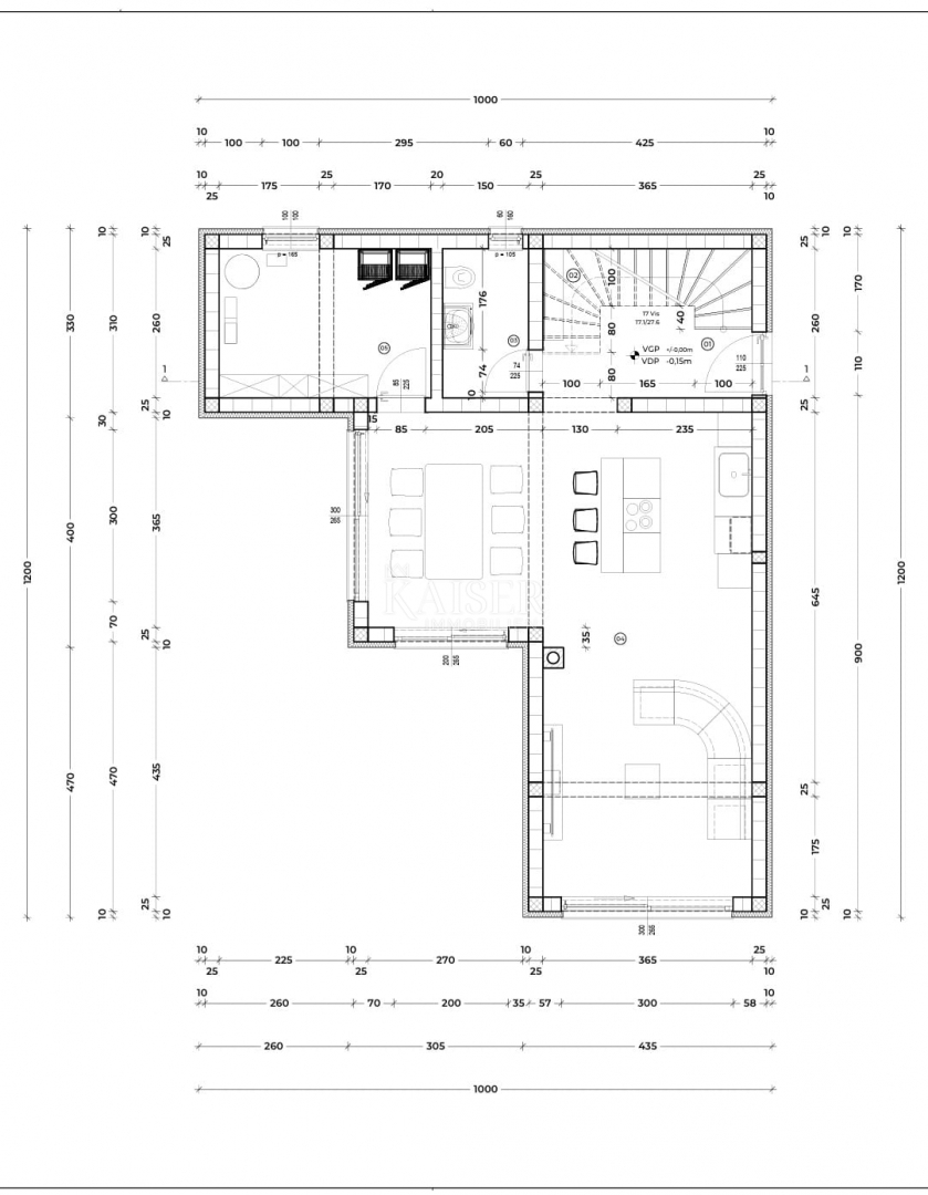
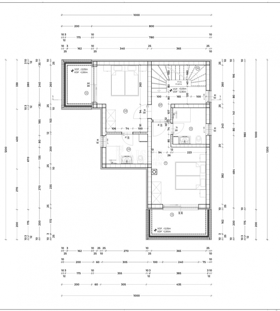
Kaiser immobilien posreduje pri prodaji izjemno atraktivnega gradbenega zemljišča z idejnim načrtom za dve družinski hiši v Risiki na otoku Krku. Parcela s skupno površino 1100 m2 se nahaja v mirnem in izoliranem delu mesta, v soseski, ki jo večinoma sestavljajo nedavno zgrajene avtentične vile. Morje in edinstvena plaža Sv. Marek sta oddaljena 1000 m, Vrbnik - znana otoška destinacija - pa 6 km. Posebnost te parcele je njena lega in orientacija. Dvignjena lega glede na okoliški teren in južna orientacija zagotavljata možnost gradnje objektov z velikim številom sončnih ur skozi vse leto in pogledom na morje iz prvega nadstropja. Parcela, ki je v naravi sestavljena iz dveh parcel, je ravne konfiguracije in pravilne oblike ter je očiščena in pripravljena za začetna gradbena dela, v bližini pa je vsa potrebna infrastruktura. Dodatna prednost je projektna dokumentacija, ki jo parcela že ima, kar kupcu zagotavlja hiter začetek gradnje brez nepotrebnega čakanja na dokumentacijo. Lastništvo je čisto, vsa dokumentacija je urejena. Idejni načrt predvideva gradnjo dveh samostojnih vil z bazenoma: VILA I: Pritličje: Dnevna soba (dnevna soba, kuhinja in jedilnica), tehnični prostor, stranišče - skupaj 62,11 m2 Prvo nadstropje: hodnik, dve spalnici z lastnimi kopalnicami in pokrite terase - skupaj 62,99 m2 Skupna bivalna površina 125,10 m2 Površina vrta: 425 m2, bazen 7,25 m x 4 m, dve parkirni mesti VILA II: Pritličje: Dnevna soba (dnevna soba, kuhinja in jedilnica), tehnični prostor, stranišče - skupaj 62,11 m2 Prvo nadstropje: hodnik, dve spalnici z lastnimi kopalnicami in pokrite terase - skupaj 62,99 m2 Skupna bivalna površina 125,10 m2 Površina vrta: 485 m2, dve parkirni mesti Ta edinstvena parcela je primerna za družine ali prijatelje, ki želijo graditi hiše blizu druga druge ali kot kombinacijo naložbe v turizem in uporabe nepremičnine kot lastnega doma. Priporočilo agenta! ID KODA 105-321 Provizija agencije za kupca znaša 3 % + DDV in se plača v primeru nakupa nepremičnine, ob sklenitvi prvega pravnega dejanja. Risika je miren kraj ob morju na vzhodni obali otoka Krk, 6 km od Vrbnika in 25 km od Krškega mostu. Sestavljen je iz več zaselkov in ima približno 150 stalnih prebivalcev. Lega kraja ob čudovitih plažah, edinstveni naravi in miru omogoča, da vsa večja mesta na otoku Krku in vse pomembne objekte dosežete v le nekaj minutah vožnje. Eden od biserov kraja je čudovita peščena plaža sv. Marka in njena razkošna, idilična narava.
ID: 1252495