Stanovanje - RIJEKA - 215.000 EUR
| Lokacija | RIJEKA, Primorsko-goranska |
| Cena € | 215.000 |
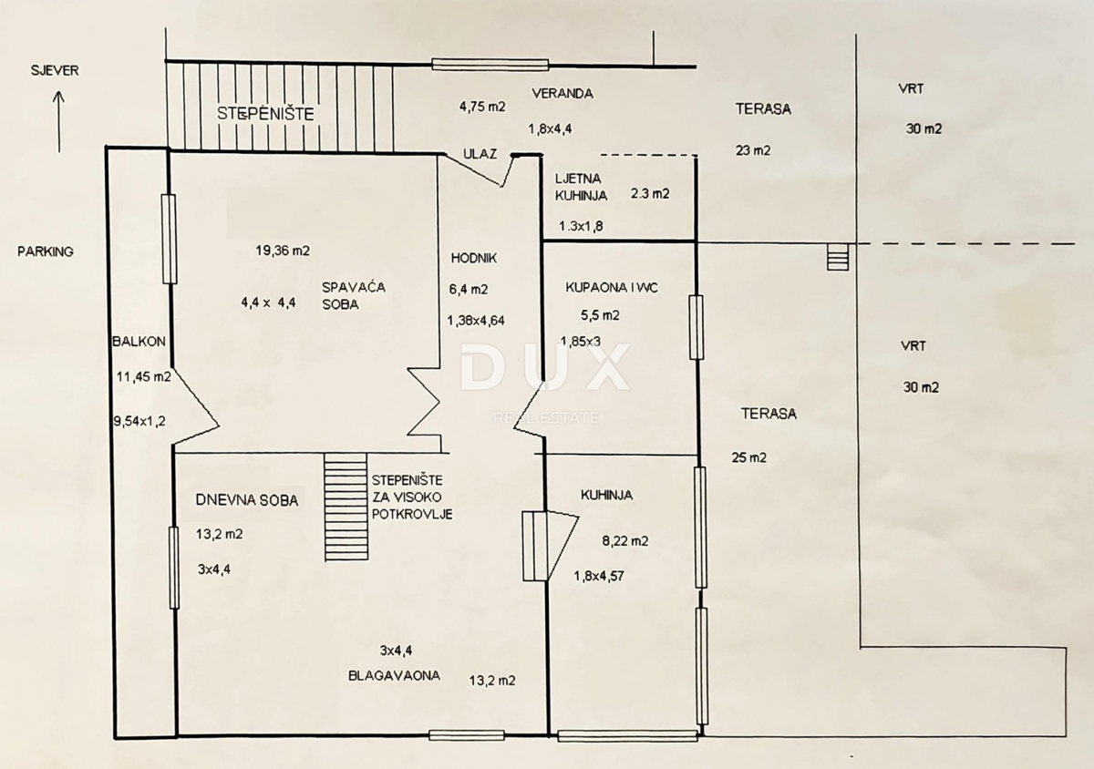
| Površina | 104 m2 |
| Število sob | 4 |
| Število kopalnic | 1 |
| Bližina prevoza | DA |
| Oddaljenost od morja | 0 m |
RIJEKA, CENTER - Dvostanovanjsko stanovanje 104 m2, z dvoriščem in parkiriščem PRILOŽNOST NEKAJ MINUT OD CENTRA! Naprodaj je dvostanovanjsko stanovanje velikosti 104 m2, ki se nahaja na odlični lokaciji na Reki. Stanovanje se nahaja v prvem nadstropju in na podstrešju hiše z novo fasado in streho. V prvo nadstropje kamnite hiše, ki je hkrati tudi prvo nadstropje stanovanja, vodi zasebno zunanje stopnišče. V tem nadstropju se nahaja vhodna dvorana, kopalnica, velika spalnica z izhodom na balkon, opremljena kuhinja in jedilnica ter dnevna soba, prav tako z izhodom na balkon. Notranje leseno stopnišče povezuje prvo nadstropje s podstrešjem, kjer se nahajata dve veliki spalnici in predsoba, ki jo je mogoče urediti kot delovni kotiček ali garderobo. Posebno vrednost tej nepremičnini daje 40 m2 velika terasa, ki se nahaja na zadnji strani hiše, popolnoma ograjena in skrita pred očmi. Na parceli so predvidena tudi do 3 parkirna mesta, kar je v središču mesta prava redkost. Medetažna konstrukcija je betonska, medtem ko je podstrešna konstrukcija lesena. Nova streha je izolirana s kameno volno. Stanovanje je klimatizirano, za ogrevanje pa so dodatno nameščene električne plošče Glamox, v jedilnici pa se uporablja peč. Nepremičnina je takoj vseljiva in se prodaja opremljena. Zaželena je manjša prenova, pri čemer vam ostane možnost, da si prostor uredite po lastnih željah. Idealno za manjšo družino ali kot naložba za najem, glede na odlično lokacijo! *** Spoštovane stranke, agencijska provizija se obračunava v skladu s Splošnimi pogoji poslovanja. www.dux-nekretnine.hr/opci-uvjeti-poslovanja
ID: 1213678