Parcela - REBIĆI - 113.300 EUR
| Lokacija | REBIĆI, BARBAN, Istrska |
| Cena € | 113.300 |
| Površina | 1300 m2 |
| Oddaljenost od morja | 0 m |
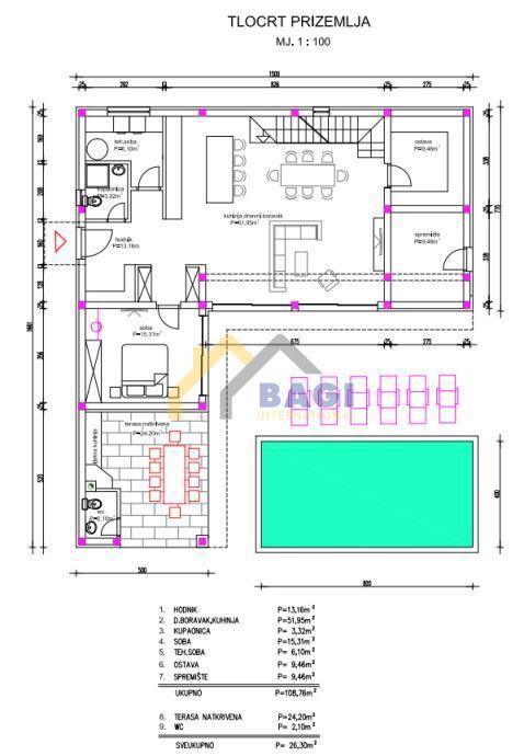
Naprodaj je atraktivno zazidljivo zemljišče z gradbenim dovoljenjem. Zemljišče se nahaja v Rebićih, na pol poti med Pulo in Labinom. Območje je obdano z zelenjem, blagimi griči in neokrnjeno naravo, kar mu daje poseben, avtentičen istrski značaj. Naselje je tipično za notranjost Istre – zaznamujejo ga kamnite hiše, suhozidi, oljčni nasadi in gozdovi, življenje pa poteka mirno in brez gneče. Rebići predstavljajo popolno kombinacijo podeželskega miru in bližine morja, zato je lokacija vse bolj iskana za bivanje, oddih ali turistično oddajanje. Morje je oddaljeno le 5 minut vožnje. Dostop do zemljišča je urejen z vzdrževane lokalne ceste, parcela pa je priključena na vso infrastrukturo (elektrika, voda, telefon, internet). Izdelan je projekt vile z bazenom. Gradbeno dovoljenje velja do avgusta 2028. Komunalni prispevek je plačan. Za več informacij pokličite:+385 98 941 7849 – roza@bagi-international.hr +385 98 172 9339 – mara@bagi-international.hr
ID: 1245003