Stanovanje - PUNAT - 295.000 EUR
| Lokacija | PUNAT, KRK, Primorsko-goranska |
| Cena € | 295.000 |
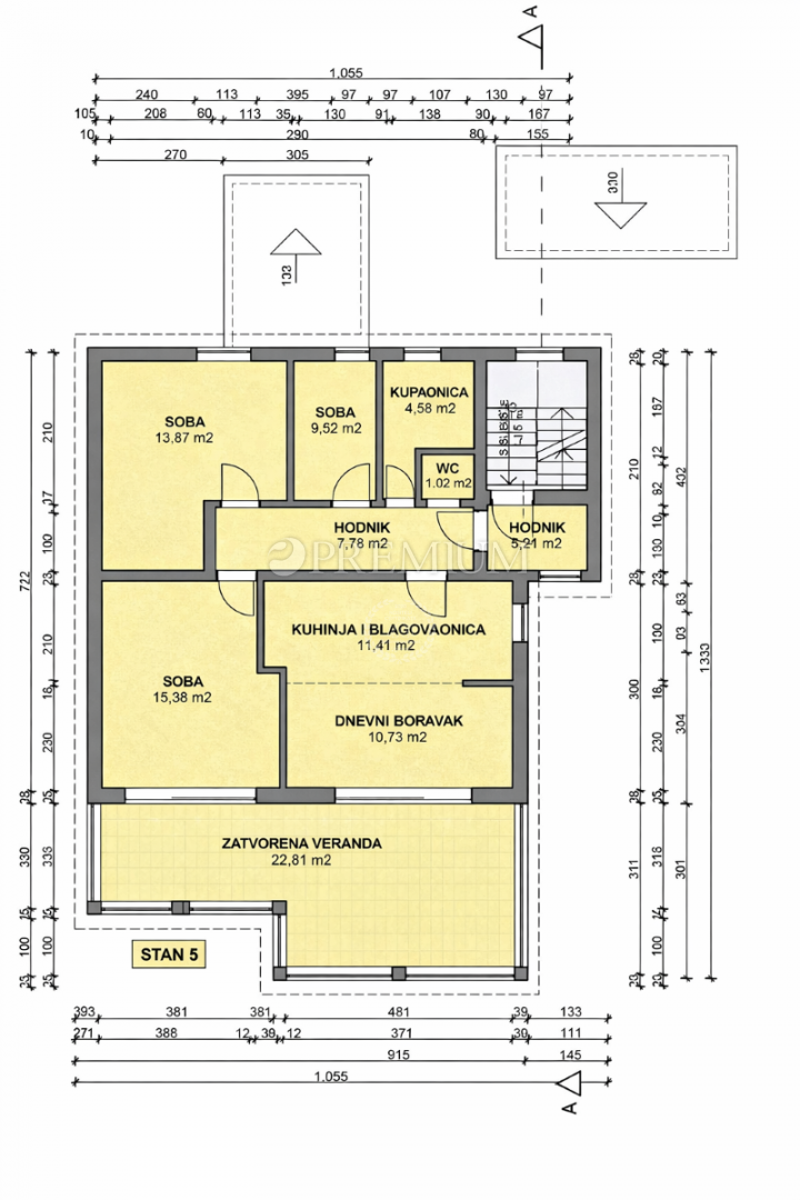
| Površina | 96 m2 |
| Število sob | 4 |
| Število kopalnic | 2 |
| Oddaljenost od morja | 500 m |
Naprodaj je prostorno in popolnoma opremljeno stanovanje v Puntu na otoku Krku, s skupno bivalno površino 96 m² in pripadajočim ograjenim vrtom velikosti 62 m². Stanovanje obsega tri spalnice, dnevno sobo, kuhinjo z jedilnico, kopalnico, ločeno stranišče, dva hodnika ter zaprto verando, ki omogoča dodatno udobje in večnamensko uporabo skozi vse leto. Stanovanju pripada tudi zasebni, ograjen vrt z urejenim prostorom za druženje in žar, idealen za bivanje na prostem. Nepremičnina je bila v celoti obnovljena leta 2019 in se prodaja popolnoma opremljena, pripravljena za takojšnjo vselitev brez dodatnih vlaganj. Stanovanju pripadata dve parkirni mesti, kar je velika prednost v tem delu Punta. Nahaja se na mirni lokaciji, le 500 metrov od morja, plaž in sprehajalnih poti, ter v bližini vseh potrebnih vsebin. Ta nepremičnina predstavlja odlično priložnost za nakup stanovanja v Puntu, bodisi kot investicija za turistični najem, družinsko stanovanje ali drugi dom ob morju.
ID: 1249359