Stanovanje - PULA - 338.000 EUR
| Lokacija | PULA, Istrska |
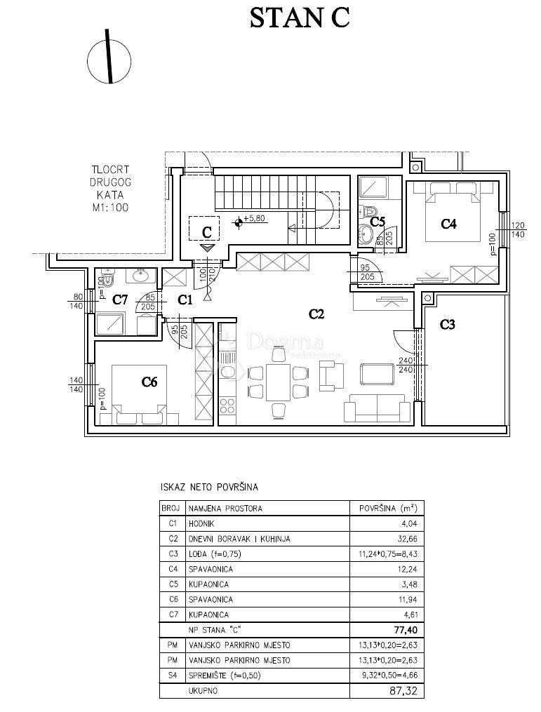
| Cena € | 338.000 |
| Površina | 77 m2 |
| Število sob | 3 |
| Število kopalnic | 1 |
| Bližina prevoza | DA |
| Oddaljenost od morja | 2500 m |
Lokacija in predstavitev Na atraktivni lokaciji, na vhodu v Pulj, se nahaja nov projekt "Šijana Gate Residence", ki vključuje gradnjo sodobnega stanovanjskega kompleksa šestih stavb s skupno 24 stanovanji. Popolnoma zasebni kompleks se bo nahajal v priljubljeni mestni četrti "Šijana" in v neposredni bližini vseh pomembnih objektov (šole, vrtci, nakupovalni centri, javni prevoz). Predviden zaključek gradnje je pomlad 2027, z vsemi potrebnimi dovoljenji in energetskim certifikatom. Razporeditev in površina: Projekt predvideva štiri stanovanja na stavbo s površino med 60m2 in 88m2 - dve v prvem nadstropju, dve v drugem nadstropju. Z učinkovito razporeditvijo bo vsako stanovanje imelo dve spalnici, prostorno kuhinjo z dnevno sobo, kopalnico in ložo. Projekt vključuje tudi lastno garažo ali zunanje parkirno mesto ter shrambo za vsako stanovanjsko enoto v pritličju stavbe. Materiali in oprema: Notranja oprema stanovanjskih stavb bo izpolnjevala visoke standarde kakovosti (energijski razred A/A+): Toplotnoizolacijska fasada (ETICS) in visoko učinkovita toplotna izolacija debeline 10 cm (mineralna volna/EPS). Protivlomna vhodna vrata, zunanje stavbno pohištvo iz PVC profilov z dvoslojnim IZO steklom, polnjenim z argonom, in rolete. Vsi prostori stanovanj bodo opremljeni z vrhunsko keramiko sodobnega dizajna, skrbno izbrano glede na vzdržljivost in estetiko. Na ložah bo za dodatno varnost in udobje bivanja uporabljena protidrsna keramika. Ogrevanje in hlajenje vsake enote s klimatsko napravo, v kopalnici, dnevni sobi in kuhinji pa električno talno ogrevanje. Kopalnice so opremljene tudi z električnimi radiatorji (sušilniki) s termostati. Zunanjost: Okolica stavbe vključuje zelene površine z avtohtonimi istrskimi rastlinami, trato z avtomatskim namakanjem, tlakovane poti in dovoze, živo mejo za zasebnost, LED razsvetljavo z zaznavanjem gibanja ter trajnostni drenažni sistem s podzemnimi odtoki in absorpcijskim vodnjakom. Lokacija Odlične prometne povezave - neposredna bližina glavne mestne ceste (Cesta Šijana), hiter dostop do središča Pulja, avtobusne postaje in izvoza na Istrski ipsilon. Bližina nakupovalnih središč - le nekaj minut hoje do Lidla, Plodina, Kauflanda, Pevexa, Bauhausa in drugih trgovin - idealno za vsakdanje življenje. Zelenje in rekreacija - oddaljenost do Carske šume (Parkovnega gozda Šijana) je le nekaj minut - idealno za sprehode, tek, kolesarjenje in družinske aktivnosti v naravi. Območje, usmerjeno v družine - v bližini so vrtci, osnovna šola Šijana, športni objekti in otroška igrišča. Urbano območje v razvoju - Šijana se razvija kot moderna mestna četrt z novimi stavbami, zato vrednost nepremičnin na tem območju nenehno narašča. Mirna in varna lokacija - naselje je stanovanjskega značaja, stran od mestnega hrupa, a še vedno zelo blizu vseh pomembnih ugodnosti. Za več informacij nas kontaktirajte z zaupanjem. Gabrijela Lovrinović Zastopnik z licenco 097 7617 229 gabrijela.lovrinovic@dogma-nekretnine.com Filip Crnjac Zastopnik z licenco 091 6001 216
ID: 1231765