Stanovanje - PULA - 243 EUR
| Lokacija | PULA, Istrska |
| Cena € | 243 |
| Površina | 55 m2 |
| Število sob | 2 |
| Število kopalnic | 1 |
| Blizu plaže | DA |
| Oddaljenost od morja | 0 m |
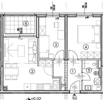
Nov stanovanjski projekt na ekskluzivni lokaciji, Pula, Veruda! Projekt Sisplac se nahaja na eni najboljših lokacij v Pulju. Ta lokacija je odlična za bivanje zaradi športno rekreacijskih vsebin v okolici, bližine tržnice Veruda, urejenih parkov ter vseh naravnih danosti, privlačnih plaž, morja in najbolj priljubljene promenade v mestu Lungomare. Stanovanje S2, ki se nahaja v pritličju stavbe, površine 55,52 m2 (neto 54,41 m2). Stanovanje obsega hodnik, dnevno sobo s kuhinjo in jedilnico, 2 spalnici, kopalnico in ložo. Tla v sobah bodo parketi, v ostalih prostorih pa keramične ploščice. Stavba ima dvigalo in podzemno garažo. * Opomba: stanovanju pripada garažno parkirno mesto z doplačilom, po ceni 20.000 eur. Za dodatne informacije se obrnite na: Azra +385 91 611 5706 +385 98 420 885 azra@almadominvest.com
ID: 1256107