Stanovanje - PULA - 190.000 EUR
| Lokacija | PULA, Istrska |
| Cena € | 190.000 |
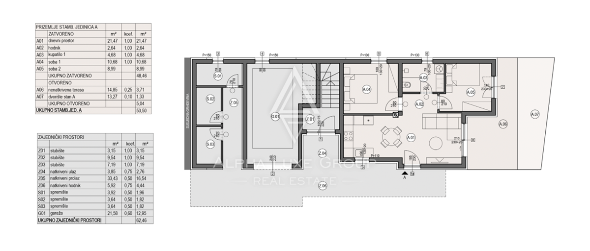
| Površina | 57 m2 |
| Število sob | 3 |
| Število kopalnic | 1 |
| Bližina prevoza | DA |
| Oddaljenost od morja | 0 m |
Na prodaj je sodobno dvosobno stanovanje v pritličju v novozgrajenem stanovanjskem kompleksu, ki se nahaja v mirnem in dobro povezanem delu Pule. Projekt obsega tri sodobne stavbe v nizu, pri čemer ima vsaka stavba le štiri stanovanjske enote, kar zagotavlja zasebnost, kakovostno gradnjo in prijetno bivalno okolje. Stanovanje se nahaja v pritličju in ponuja funkcionalno razporeditev prostorov, ki vključuje odprt dnevni prostor s kuhinjo in jedilnico, dve spalnici, kopalnico, nepokrito teraso in zasebni vrt, kar ustvarja popolno ravnovesje med notranjim udobjem in zunanjim bivanjem. Nepremičnina je zgrajena po visokih standardih in je opremljena s klimatsko napravo za ogrevanje in hlajenje, talnim ogrevanjem, električnimi roletami, varnostnimi vrati ter kakovostnimi PVC okni s trojno zasteklitvijo. Te lastnosti zagotavljajo odlično energetsko učinkovitost, varnost in zvočno izolacijo. Stanovanju pripadata tudi zunanje parkirno mesto in shramba, kar povečuje praktičnost in udobje vsakodnevnega bivanja. Predviden zaključek gradnje je leta 2026, kar predstavlja odlično priložnost za nakup sodobnega doma ali investicije. Lastništvo je urejeno in vpisano 1/1. Pula je eno najbolj zaželenih mest v Istri, znano po bogati kulturni dediščini, razviti infrastrukturi in bližini Jadranskega morja. Valmade ponuja mirno bivalno okolje ob hkratni bližini centra mesta, šol, trgovin in čudovitih plaž, kar zagotavlja dolgoročno vrednost. Your satisfaction is our mission. We look forward to future collaboration! Ogledi nepremičnine so možni izključno ob predhodnem podpisu posredniške pogodbe v skladu z zakonodajo. Posredniška provizija znaša 3% + DDV in se plača ob podpisu predpogodbe ali kupoprodajne pogodbe. https://nepremicnineistra.com
ID: 1280596