Stanovanje - PULA - 189.500 EUR
| Lokacija | PULA, Istrska |
| Cena € | 189.500 |
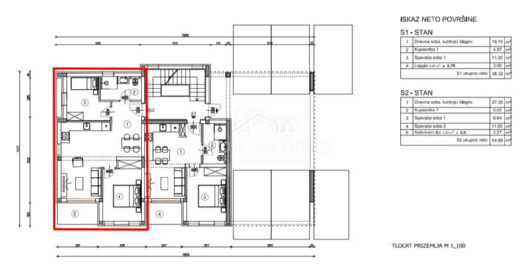
| Površina | 54 m2 |
| Število sob | 3 |
| Površina parcele | 100 m2 |
| Število kopalnic | 1 |
| Bližina prevoza | DA |
| Oddaljenost od morja | 4000 m |
Za vse ljubitelje mesta Pulj in njegovih znamenitosti je to lahko idealna nepremičnina za občasno turistično bivanje ali prijetno celoletno družinsko življenje. Kakovostna novogradnja se nahaja v ožjem predmestju mesta Pulj, nedaleč od centra in vseh ugodnosti, kot so šole, vrtci, trgovine, zdravniki in druge potrebne stvari v vsakdanjem življenju. Pritlično stanovanje z velikim dvoriščem sestavljajo predsoba, kuhinja, jedilnica, prostorna dnevna soba z izhodom na sončno pokrito teraso z obilo naravne svetlobe, 2 spalnici in kopalnica. Po celotnem stanovanju bo nameščeno električno talno ogrevanje s klimatsko napravo za dodatno ogrevanje in hlajenje. V tej fazi imajo bodoči kupci možnost izbire zaključnih materialov po lastnih željah. Na dvorišču stavbe je zagotovljeno parkirno mesto. Zaključek vseh del je predviden do konca prihodnjega leta. Investitor ponuja možnost plačila 30 % cene stanovanja v začetni fazi, medtem ko lahko kupec po pridobitvi uporabnega dovoljenja najame kredit za preostali znesek, kar olajša nakup in reševanje stanovanjskega vprašanja. Ta izjemna priložnost za nakup stanovanja v odličnih pogojih naredi to nepremičnino na trgu zelo privlačno. Za tiste, ki lahko počakajo z gradnjo, je to stanovanje zagotovo vredna naložba. Ne zamudite te ponudbe. Ogled nepremičnine je možen le s podpisano pogodbo o posredovanju, ki je podlaga za nadaljnja dejanja v zvezi s kupoprodajo in plačilom provizije v skladu z Zakonom o posredovanju v prometu z nepremičninami. Pri kupoprodaji znaša posredniško nadomestilo 3 % brez DDV in se zaračuna kupcu in prodajalcu ob sklenitvi predpogodbe/kupoprodajne pogodbe.
ID: 1239120