Stanovanje - PULA - 180.540 EUR
| Lokacija | PULA, Istrska |
| Cena € | 180.540 |
| Površina | 54 m2 |
| Število sob | 3 |
| Število kopalnic | 1 |
| Bližina prevoza | DA |
| Oddaljenost od morja | 1000 m |
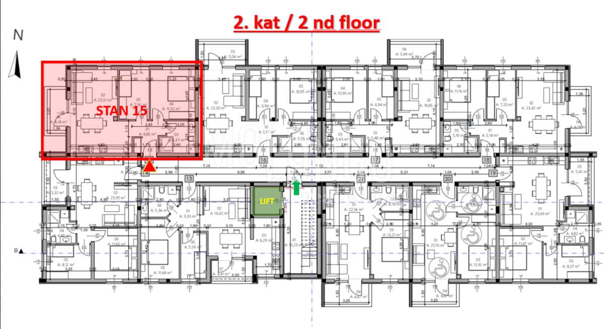
PULA – MONVIDAL | NOVOGRADNJA | STANOVANJE 15 – 2. NADSTROPJE | 54,95 m² Naprodaj je stanovanje št. 15 v novem stanovanjskem projektu v naselju Monvidal v Puli, v stavbi B, v 2. nadstropju sodobne večstanovanjske stavbe z dvigalom. OSNOVNI PODATKI: nadstropje: 2. nadstropje skupna površina: 54,95 m² orientacija: severozahod spalnice: 2 kopalnica / WC: 1 predvidena vselitev: oktober 2027 Stanovanje ima funkcionalno in premišljeno razporeditev ter veliko naravne svetlobe. OPREMA IN STANDARD: prodaja na ključ talno gretje v kopalnici klimatske naprave v ostalih prostorih kakovostna toplotna izolacija – visoki energetski razred italijanska keramika in laminat prve kakovosti protivlomna vhodna vrata PVC stavbno pohištvo nemškega proizvajalca z dvoslojnim steklom DODATNE PREDNOSTI: dvigalo možnost garažnega ali zunanjega parkirnega mesta urejene zelene površine odlična lokacija – bližina vseh pomembnih storitev Idealno za bivanje ali kot varna naložba. Za več informacij nas kontaktirajte.
ID: 1247715