Stanovanje - PULA - 168.000 EUR
| Lokacija | PULA, Istrska |
| Cena € | 168.000 |
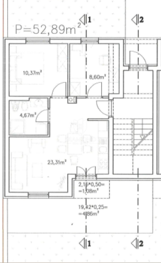
| Površina | 52 m2 |
| Število sob | 2 |
| Število kopalnic | 1 |
| Oddaljenost od morja | 0 m |
Pula, Istra V mirnem in urejenem delu Pule, v bližini samega središča mesta, se nahaja novogradnja sodobnega oblikovanja s skupno štirimi stanovanji. Lokacija nudi mir in zasebnost, hkrati pa omogoča hiter dostop do centra, trgovin, šol in drugih storitev. Stan se sestoji iz dnevnega prostora z odprtim konceptom, ki povezuje kuhinjo in jedilnico. Poleg tega stan ponuja dve udobni spalnici in moderno kopalnico s predvidenim radiatorjem, v dnevnem prostoru pa bo nameščena klimatska naprava. Talne obloge si lahko izbere kupec, kar omogoča prilagoditev stanovanja po lastnih željah. Zaključek gradnje je predviden proti koncu leta 2026. Ne zamudite priložnosti za nakup stanovanja v sodobni novogradnji, ki združuje kakovostno gradnjo, funkcionalno razporeditev in odlično lokacijo. Kontaktirajte nas še danes in rezervirajte stanovanje pred zaključkom gradnje!
ID: 1230043