Stanovanje - PULA - 155.000 EUR
| Lokacija | PULA, Istrska |
| Cena € | 155.000 |
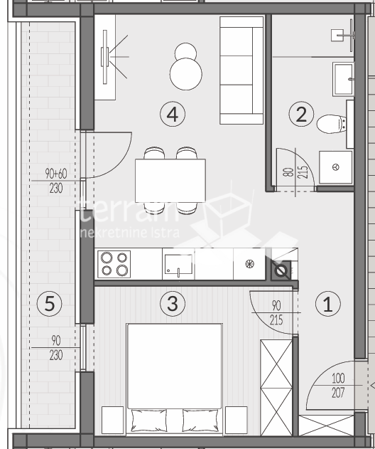
| Površina | 48 m2 |
| Število sob | 2 |
| Število kopalnic | 1 |
| Bližina prevoza | DA |
| Oddaljenost od morja | 0 m |
Predstavljamo vam sodobno stanovanje površine 48,51 m2, ki se nahaja v drugem nadstropju novogradnje s skupno dvema etažama, v atraktivnem naselju Šikići, Pula. Stanovanje se nahaja v mirnem delu naselja, obdano z naravo in obilico sonca, kar ga naredi idealno izbiro za tiste, ki iščejo udoben in kakovosten življenjski prostor v sožitju z okoljem. Nepremičnina je bila zgrajena leta 2025, kar zagotavlja sodobne standarde gradnje in udobja. Lokacija v središču naselja omogoča enostaven dostop do vseh osnovnih vsebin, hkrati pa omogoča uživanje v miru in lepem razgledu. Stanovanje je 1,5-sobno (1S+DB) z vzhodno orientacijo, kar omogoča obilico jutranje svetlobe. Razpored prostorov je funkcionalen, prostorna terasa pa dodatno povečuje bivalni prostor in nudi prijetno mesto za sprostitev. Med dodatnimi značilnostmi stanovanja so protivlomna vrata, ki zagotavljajo dodatno varnost. Na voljo je parkirišče za udobje stanovalcev. Ogrevanje je urejeno z električno energijo, talnim gretjem in klimatsko napravo, kar omogoča optimalno temperaturo skozi vse leto. Šikići so znani po mirnem vzdušju, bližini narave in odličnih prometnih povezavah, zaradi česar je ta lokacija zelo zaželena za bivanje in naložbo. Pula, kot eno najpomembnejših mest Istre, ponuja bogato kulturno in družabno ponudbo ter bližino vseh pomembnih vsebin. Za dodatne informacije ali dogovor za ogled nas prosimo kontaktirajte. Ta nepremičnina predstavlja odlično priložnost za udobno bivanje ali investicijo v perspektivnem delu Pule.
ID: 1143651